Casa Tunquén

Empresa / oficina: Nicolas Loi Arquitectos

Arquitecto a cargo: Nicolas Loi

Ingeniero Estructural: Pedro Escobar

Cliente:  Sandra Mejías

Ubicación: Condominio Punta del Gallo, Tunquén, V Región

Ingeniero: Pedro Escobar

Superficie construida: 250 m2

Año de construcción: 2013

Fotógrafo: Marcos Mendizabal

Memoria

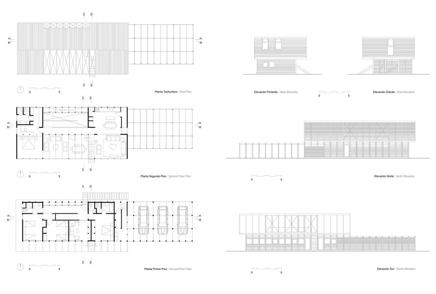
La vivienda está ubicada en el balneario de Tunquén, V Región, en un terreno casi plano en un sector cercano al mar, desde el cual las vistas hacia el mar son limitadas a nivel de terreno. Por esta razón, se decidió ubicar los recintos más importantes de la vivienda en el segundo nivel, desde donde sí existe una gran vista hacia el mar y la playa cercana. El estar, comedor, cocina y dormitorio principal están en el segundo nivel, así como una terraza descubierta. Esta terraza separa la zona pública de la privada, y queda cerrada por tres lados, quedando protegida de viento del sector. Asimismo, esta terraza permite la entrada de sol que irradia desde la parte trasera, en forma lateral a los recintos principales (estar y dormitorio principal). Una escalera exterior comunica la terraza con el jardín. En el primer nivel, se ubican los dormitorios de los hijos, invitados, y los estacionamientos cubiertos, que son una prolongación de la misma estructura de la casa. La arquitectura del proyecto pretende no ir más allá de realizar una distribución lógica de recintos y una relación lógica con el contexto. La materialización final es un resultado de la técnica constructiva en madera; de forma similar a cómo una caja de madera o un pallet  están fabricados, la generación de espacios se crea a través del apilamiento o encuentro cruzado de un elemento de madera con el que le sigue sucesivamente en la lógica constructiva de la madera: el resultado es que los mismos elementos constructivos son los que generan la arquitectura, y la arquitectura como “diseño” tiende a “desaparecer”, y convertirse en “construcción”. De este modo, se intenta que la arquitectura “elimine” más que “agregue”, siendo una técnica de reducción más que de adición, para que la técnica constructiva sea la protagonista del resultado formal. La lógica constructiva de la madera, a través de pilares cercanos entre sí, vigas de luces cortas, y revestimientos de largos cortos colocados siempre entre pilares, permite el funcionamiento adecuado del material, evitando deformaciones. El sistema de pilares permite la transparencia para generar vistas hacia el mar (sur), y para la entrada de sol desde la parte trasera (norte). A la estructura base, se suman 2 sets de elementos secundarios: En zonas de servicio como cocina y baños, se generan tabiques cortos entre pilares, lo que tienen poca deformación en el tiempo al formarse con elementos de largos menores. En las zonas públicas, se suma una estructura secundaria de quebravistas entre pilares, en la parte trasera de la vivienda, para evitar el exceso de sol que entra por la parte trasera de la vivienda, y para generar privacidad desde la parte alta del sector.

¡Comparte nuestro contenido!