Casa Visera, Frutillar.

Empresa/Oficina: MH Studio

Arquitecto a cargo: matías Honorato

Ubicación: Frutillar

Pais de obra: Chile

Superficie construida:101-300

Año: 2024

Fotografo: Esteban Arteaga

Categoría: Categoría A: Obras que comprendan hasta 1.000 m2 construidos

DOCUMENTOS ADJUNTOS

© Derechos reservados por sus autores intelectuales.

Memoria del proyecto

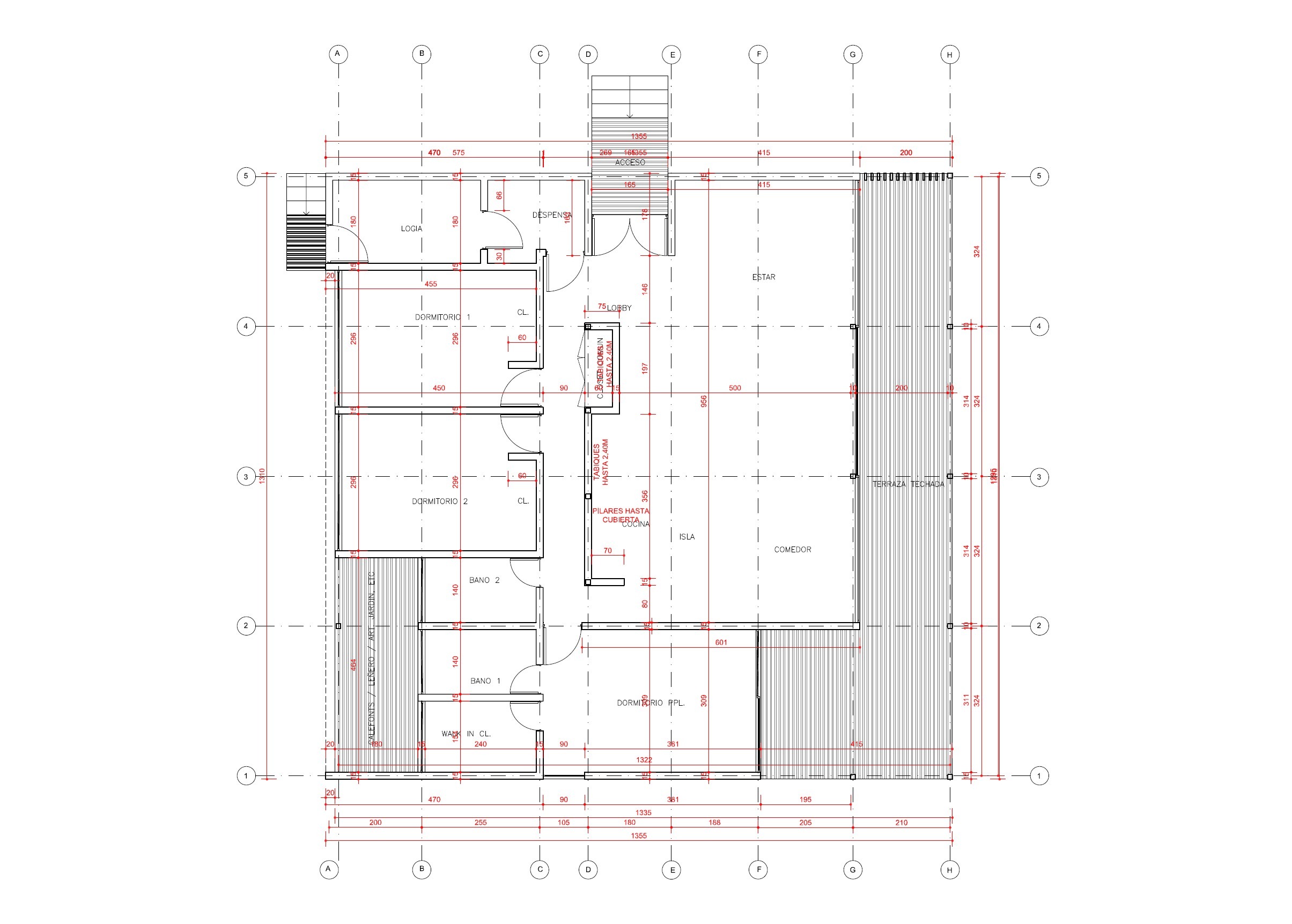
La Casa Visera se emplaza en una parcela elevada en Frutillar, Región de Los Lagos, con vistas directas a los volcanes Osorno y Calbuco. El proyecto se organiza a partir de un volumen compacto de planta cuadrada, con una orientación definida por el paisaje. Un ventanal y una terraza frontal —la “visera”— enmarcan los hitos geográficos a la distancia , mientras que el resto de las fachadas responde con vanos controlados que resguardan la privacidad interior.

El programa distribuye los recintos comunes hacia la terraza y los dormitorios hacia la parte posterior, generando una clara zonificación funcional. La cubierta se eleva en el centro del volumen, incorporando una lucarna que permite el ingreso de luz natural cenital y configura un espacio interior con carácter escultórico.

Innovación en el uso de la madera

La operación estructural principal consiste en levantar el centro geométrico de la casa, generando una geometría facetada en cubierta y cielo sin apoyos intermedios. Esta condición demandó el diseño y fabricación de vigas de roble a medida para las aristas superiores, que actúan como líneas estructurales autoportantes. La secuencia constructiva se organizó a partir del montaje de estos vértices principales, lo que permitió posteriormente completar las superficies con madera estructural estándar (pino 2x6"). La madera cumple un doble rol: estructura primaria del volumen central y material de terminación interior, estableciendo continuidad entre sistema constructivo y expresión espacial.

Desempeño Técnico

La estructura combina vigas de roble a medida en las aristas principales, con envigado convencional de pino dimensionado para tabiques y techumbre. Las superficies interiores, así como la terraza frontal, están revestidas en madera machihembrada dispuesta horizontalmente, lo que permite acentuar la geometría cambiante del cielo. Las fachadas laterales y posteriores, expuestas a condiciones climáticas severas, se resuelven con revestimiento de planchas metálicas prepintadas dispuestas verticalmente. Esta solución asegura durabilidad y permite una lectura continua entre cubierta y muros como un solo plano plegado, diferenciando claramente entre cara pública y privada del volumen.

Propuesta conceptual y/o impacto

La propuesta arquitectónica establece una relación deliberada con el paisaje distante, enmarcando los volcanes y el cielo a través de un espacio cartesiano semi exterior —la “visera”— que actúa como umbral entre interior y territorio. La casa se organiza en torno a un centro elevado, donde la geometría de la cubierta no solo introduce luz natural, sino que modela una experiencia espacial orientada hacia lo lejano. El volumen se concibe como un bloque horizontal, compacto y oscuro en su exterior metálico, que contrasta con un interior luminoso revestido en madera, estableciendo una dualidad clara entre protección y apertura, entre masa contenida y vacío orientado.

¡Comparte nuestro contenido!