El proyecto “Casadetodos” es una vivienda unifamiliar a los pies de los Andes, en Santiago. El proyecto se articula a partir de la exploración de potenciales en estructuras no convencionales, la generación de superficies complejas y el privilegiar las vistas hacia la montaña.
La estrategia estructural consiste en ubicar cuatro marcos metálicos en los ejes estructurales principales. Los marcos se conciben como una familia de componentes que se repiten y varían de acuerdo a los requerimientos espacial-programáticos. La variación de los componentes genera una superficie reglada, que resulta en una envolvente de doble curvatura. Esta construye una “playa colgante” sobre sí.
Los marcos estructurales se exponen a la vista tanto dentro como fuera de la casa. La estructura o “esqueleto” se inspira en puentes colgantes, intenta lograr una configuración esbelta, donde los esfuerzos dinámicos se materialicen en vectores metálicos. Estos generan grandes voladizos, otorgándoles levedad a los volúmenes, y cubriendo una terraza inferior.
La casa se emplaza en la zona más alta y plana del terreno, asegurando las mejores vistas, y facilitando el proceso constructivo. El sistema constructivo consiste en elementos prefabricados -estructura y revestimiento de madera-. Así se deja un mínimo de escombros y se acelera el proceso mediante uniones secas. La utilización de la madera permite alivianar la estructura, lograr dobles curvaturas, por la flexibilidad de las planchas de OSB que la conforman, y finalmente el palillaje de tablas de madera conforma la superficie reglada, y al ser un material natural dialoga bien con su entorno montañoso.
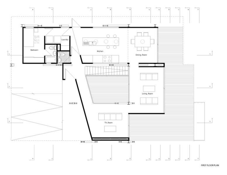
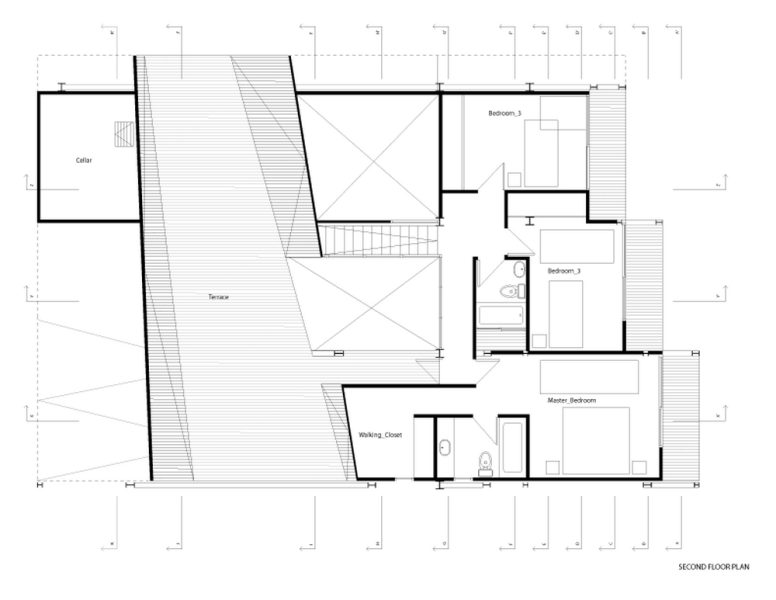
La configuración espacial interior construye constantes vistas hacia la montaña. Como la casa se abre hacia el sur, la iluminación es compensada a través de un patio interior y lucarnas que traen luz norte. La fachada norte es completamente ciega, para dar privacidad a la terraza sobre el techo y a las fachadas internas.
En la “Casadetodos” los espacios de ocio se privilegian, espacios que se relacionan con la naturaleza ya sea en situaciones ensimismadas o abiertas completamente hacia los Andes.
Fotografías: © Gonzalo Puga / © Verónica Arcos
[unitegallery Casa_detodos]























































