El Centro de información ambiental, del Parque Nacional Bosque Fray Jorge, ubicado en la Provincia del Limarí, IV región de Coquimbo, se sitúa dentro de un plan de integración con las comunidades vecinas, para lo cual se propuso un nuevo camino de acceso, desde la Ruta5, incluyendo en su trayecto algunos poblados aledaños que ahora son parte del circuito turístico y educativo de la zona.
En este contexto, se nos encarga el nuevo diseño para el centro de información ambiental.
Luego de ingresar al parque, este nos permite reconocer el lugar como una Lejanía. Un paisaje que a medida que avanzamos nos va mostrando la naturaleza y sus diferentes tamaños.
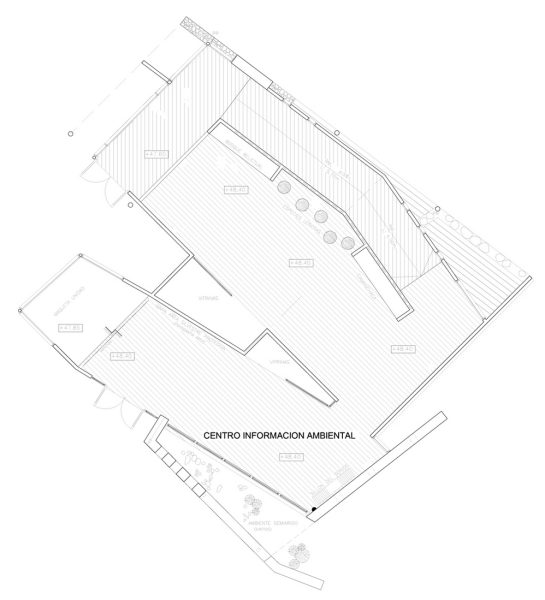
Es en esta condición, que surge una nueva instancia, el CIAM, un lugar en el cual se ofrece información previa al ascenso al parque. Aquí, este interior busca una nueva aproximación, aparece la gradualidad y las proporciones, porque es aquí en el centro de información donde confluyen los tamaños propios de la escala humana y los tamaños de la naturaleza.
El Espacio interior, ni muy amplio, ni muy estrecho, permite al cuerpo seguir en este desplazamiento en búsqueda, el que se ve representado no solo por lo lejano, sino que se apoya en representaciones tangibles, una maqueta que da cuenta de la extensión total del parque, fotografías, pequeñas muestras de flora y fauna, nichos con representación de especies, archivos de sonido, etc.
Todo esto entre aberturas orientadas, que se abren de muro a muro, o bien son muy pequeñas y capturan solo fragmentos del lugar.
El centro de información nos proporciona el material necesario para entender el parque , pero a la vez son las dimensiones del centro con sus alturas y aberturas, el que nos informa de nuestra condición de ESTAR DENTRO DE UN LUGAR ORIENTADO esto entendido no solo como un lugar que “mira hacia” aquello que se nos aproxima, sino que también nos muestra aquella condición de estar en un lugar en el cual los tamaños de la naturaleza van cambiando ante los ojos de quienes visitan el lugar, es ahí donde logramos entender el parque y su grandeza.
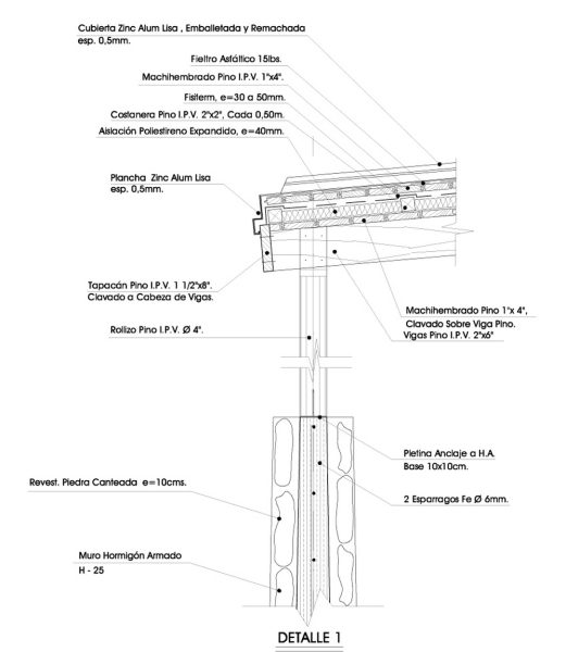
La obra se materializa proponiendo construir en primera instancia un suelo continuo, el cual mediante un entramado horizontal de madera construido sobre pircas de piedra y pilotes, va definiendo zonas de exposición y recorridos.
Este suelo se aprecia como una plataforma, resuelta con vigas de madera de 2” x 6”. Sobre estas, una doble capa de entablado, una primera como base arriostrante de 1”x 8” sin cepillar y la capa de terminación con un entablado cepillado de 1” x 4” entre las cuales se consideró los aislantes necesarios.
Los muros en base a entramados verticales de madera envuelven dos zonas de exposición las cuales en su extremo poniente dejan el parque al alcance del ojo, mirada que en el transcurso del recorrer es conducido por superficies (suelos, muros y cielos) de madera continua, constituidas por entablados de pino insigne (IPV).
Los vanos en muros atrapan el paisaje en fragmentos y en cielos conducen la luz que ingresa sobre muros resaltando el color y la textura de la madera.
Fotografías: Nicolás Yazigi.
[unitegallery Centro_ambiental]






















