Centro de interpretación del Humedal de la Isla del Puerto

Empresa / oficina: UNIVERSIDAD DE CONCEPCION DEL URUGUAY ENTRE RIOS

Arquitecto a cargo: Cristina Bonus- Damian Caraballo

Ingeniero Estructural: Ing. ALfredo Fernández

Cliente:  Asociación Educacionista La Fraternidad

Ubicación: Isla del Puerto.Concepción del Uruguay

Ingeniero: Ing. ALfredo Fernández

País:  Argentina

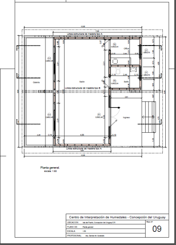
Superficie construida: 60m2 cubiertos 35 m2 semicubiertos

Año de construcción: 2021

Fotógrafo: CRISTINA BONUS

Ir al Sitio Web

Proyecto “Valorización del Humedal en Isla del Puerto,
Concepción del Uruguay, Entre Ríos”

Este proyecto se lleva adelante a partir de una alianza estratégica entre la Facultad de Arquitectura y Urbanismo de la Universidad de Concepción del Uruguay (UCU), la Universidad Autónoma de Entre Ríos (UADER), la Facultad de Ciencias de la Salud (UNER), e integrantes de la sociedad civil, conjuntamente con el Municipio y el INTA. Estos últimos, a través de la Mesa ProDeAL. Las entidades participantes formularon el presente proyecto que resultó seleccionado con una financiación cercana a los U$S 50.000,00, el cual es administrado por la Asociación Educacionista La Fraternidad.
La donación proviene del Fondo para el Medio Ambiente Mundial (FMAM), implementada por el Programa de las Naciones Unidas para el Desarrollo (PNUD) y administrado por la Oficina de Proyectos de las Naciones Unidas (UNOPS), gestionada por el Programa de Pequeñas Donaciones (PPD).

El Humedal, como objetivo
Este proyecto propone contribuir, promover, conservar y recuperar los ambientes nativos, a la vez generar un programa de educación ambiental con el fin de estimular la preservación de la biodiversidad del HUMEDAL Para ello, se construirá un centro de interpretación, se capacitarán a docentes y alumnos y se removerán especies exóticas invasoras, reutilizando la madera para la construcción de pasarelas y senderos.

El CENTRO DE INTERPRETACIÓN AMBIENTAL. Mediante la instalación de la infraestructura para la reserva natural se logrará centralizar las actividades de educación ambiental y garantizar la continuidad de aquellas dedicadas al estudio y conservación del ambiente natural. Para su construcción se utilizan materiales sostenibles de escasa contaminación ambiental. La madera es un material sustentable, por ser una materia prima renovable y reciclable. Son construcciones secas, que absorben la humedad del ambiente generando ambientes saludables. Su montaje es muy rápido, siendo además construcciones flexibles que pueden ser modificadas, refaccionadas y ampliadas, siendo reutilizable el 90% de sus materiales. Se buscó un diseño original e interesante con el fin de desmitificar que las construcciones de madera son precarias y de baja calidad. Se construye con madera de Eucaliptus, extraídas de los bosques cultivados de la región. La estructura de las columnas es de madera dura: guayubira. Las vigas estructurales son de madera laminadas. Las terminaciones exteriores son tablas de madera de eucaliptus cortadas en falso inglés. Y en el interior placas de yeso.
La Facultad de Arquitectura y Urbanismo cuenta con un “Foro para la Promoción y Desarrollo del uso de la Madera”, dentro del cual se realizan investigaciones y estudios a través del grupo GECOMA, con el fin de iniciar e incentivar en los estudiantes el conocimiento de la madera, de sus cualidades y propiedades. Logrando en sus investigaciones y desarrollo, una innovación obteniendo por ella una patente otorgada por el Registro Nacional de Propiedad Intelectual en el año 2020
Contando con dos Redes Interuniversitarias con los países de América latina entre Argentina, Chile, Uruguay y México. Se difunden sus estudios a través de los seminarios anuales realizados desde 2004, acompañados por renombrados investigadores invitados nacionales e internacionales

¡Comparte nuestro contenido!