Comercio local / Estación de peatones Carahue

Empresa/Oficina: Impulso Arquitectos

Arquitecto a cargo: Jaime Alarcón Fuentes / Katherine Klagges/ Camilo Pizarro / Cesar Jequier

Ingeniero estructural: Daniel Toro Prado

Cliente: Inmobiliaria Punto y Goma

Ubicación: Ciudad de Carahue, Región de la Araucanía

Pais de obra: Chile

Superficie construida:301-600

Año: 2024

Fotografo: Edgar Dassi Junior

Categoría: Categoría A: Obras que comprendan hasta 1.000 m2 construidos

DOCUMENTOS ADJUNTOS

© Derechos reservados por sus autores intelectuales.

Memoria del proyecto

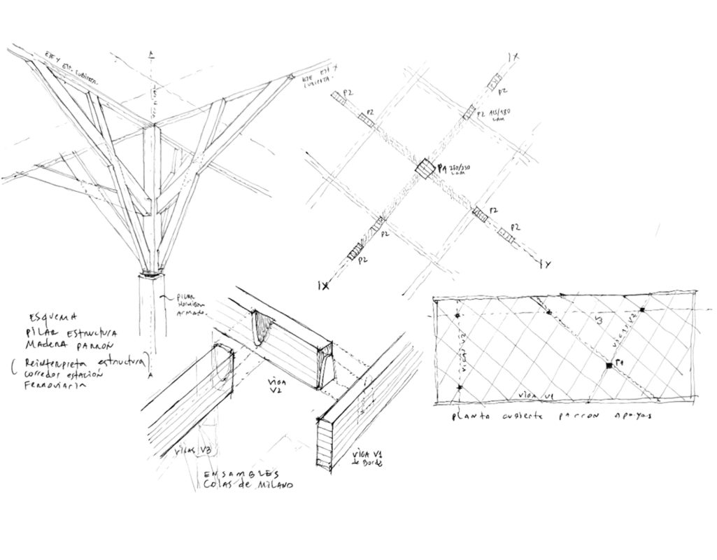
La Estación Comercial de Carahue, diseñada por Impulso Arquitectos, se emplaza en una emblemática esquina del centro urbano de la ciudad de Carahue, Región de La Araucanía. El proyecto recupera un nodo histórico degradado, transformándolo en un espacio público-comercial de 650 m² que reinterpreta la memoria de la antigua estación ferroviaria cercana y su estructura de madera que marco el origen del comercio en la ciudad. El partido general propone un vacío en la esquina bajo un alero de madera que articula dos volúmenes comerciales y cobija los actos ciudadanos del clima del sur, un volumen de hormigón y otro revestido en madera. Este espacio intermedio funciona como una estación de peatones: un lugar de pausa, sombra y encuentro en medio del bullicio y la estrechez de las circulaciones peatonales, debido a la apropiación de las aceras públicas.

Innovación en el uso de la madera

La madera es central en la propuesta arquitectónica de las nuevas edificaciones como imagen urbana, no solo como evocación a los aleros ferroviarios históricos de Carahue, sino como elemento estructural y expresivo en una esquina emblemática de la ciudad cuyo telón de fondo es una serie de celosías de madera que revisten una parte del edificio. Por otra parte el  proyecto destaca por la incorporación del alero y el pilar que replica la estructura de la estación ferroviaria cuyo sistema constructivo se reinterpreta en madera laminada mecanizada mediante tecnología CNC y brazo robótico,  lo que permitió cortes de alta precisión y ensamblajes optimizados. Esta solución no solo mejora la eficiencia constructiva, sino que representa una innovación al conjugar prefabricación avanzada con técnicas tradicionales. El diseño del parrón estructural potencia el uso público y rememora estructuras vernáculas reinterpretadas desde la contemporaneidad.

Desempeño Técnico

Se utilizaron elementos de madera laminada encolada Hilam (MLE) para el alero principal y pilar, con piezas mecanizadas digitalmente, garantizando precisión y eficiencia en el montaje. La madera aserrada y tableros se emplearon en revestimientos y detalles constructivos del volumen superior así como en las celosías de madera del vacio. Para enfrentar la exposición a la intemperie y se aplicaron impregnantes hidrorrepelentes con filtros UV tipo Cutek, además de diseñar aleros profundos que resguardan la estructura principal de la lluvia del sur. El sistema constructivo considera ventilación pasiva y encuentros que evitan acumulación de humedad, reduciendo el riesgo de ataque por xilófagos.

Propuesta conceptual y/o impacto

El proyecto promueve la arquitectura en madera como estrategia de regeneración urbana, reconectando a la comunidad con su identidad cultural a través de un lenguaje constructivo sostenible. Su impacto radica en demostrar cómo la madera puede ser soporte técnico, expresivo y simbólico en ciudades intermedias. Se eligió este material por su bajo impacto ambiental, su disponibilidad local en La Araucanía y su capacidad para establecer un vínculo afectivo con el patrimonio ferroviario de Carahue. La obra propone una arquitectura responsable, que valora la tradición sin renunciar a la innovación tecnológica.

¡Comparte nuestro contenido!