Comunidad Guñelve

Código de equipo: ARQ3232

Universidad: UNIACC

Sede:  Providencia

País:  Chile

Ciudad: Santiago

Equipo: Constanza Saldivia, Claudio Jaque, Rene Jorquera

Profesores guía:

Carlos Peña Perez

Hermann Rosenthal

DOCUMENTOS ADJUNTOS

© Derechos reservados por sus autores intelectuales.

Lámina N°4 Formato A2

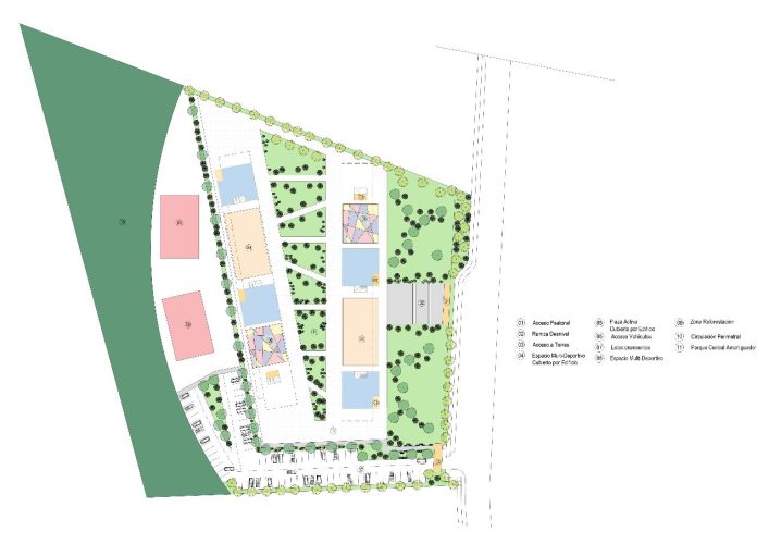
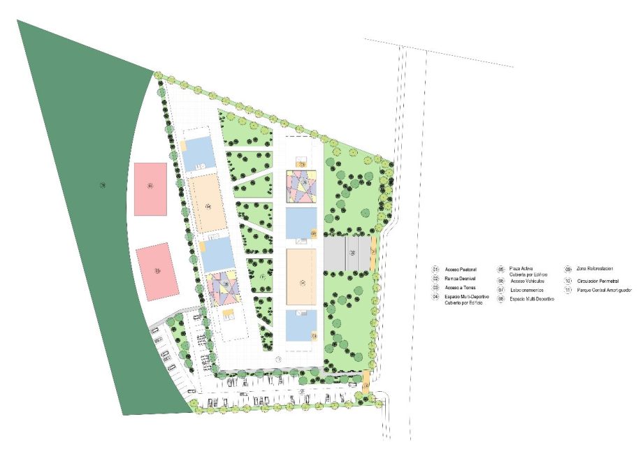
Descripción general

El proyecto tiene como objetivo principal la integración habitacional en el sector de Curanilahue. Su construcción esta a base de madera de pino radiata. Este proyecto consta de 104 departamentos, los cuales estan divididos en dos torres, es decir, 52 edificios por torre construida. Cada torre cuenta con cinco niveles, ademas de una sotea para actividad recreativas y huertos para la comunidad. Su edificación contiene una fachada que aporta tanto en su diseño como en su estructura.

Fundamentación del proyecto

Para la creación de este proyecto se inspiro en: un cubo rubik, por su diseño  y forma; y la estrella mapuche Guñelve, para darle más significado a la estructura con la cultura en el sector. Ademas esta diseñada para ser fabricada con madera de pino radiata, el cual tambien es caracteristico de la zona. Por lo tanto reduce la huella de carbono.

Estrategia de localización, emplazamiento y resolución programática y espacial

Este proyecto fue pensado principalmente para  la integración habitacional en la comuna de Curanilahue, la cual fue afectada por un megaincendio que comenzó desde el 30 de enero del 2023, que afectó a seis regiones del país. Para ayudar la comunidad de los alrededores de Santa Juana por la tragedia.

Propuesta arquitectónica desde el material

La edificación se trabaja a base de pino de radiata el cual es un material noble, es caracteristico de la zona, con el objetivo de disminuir la huella de carbono. Su fachada es una gran viga que soporta la estructura para poder generar estos grandes voladizos, que le dan un diseño atractivo, utilizando la menor ocupación de suelo posible con la finalidad de no invadir el terreno natural que posee la zona.

Innovación de la propuesta

La innovación consta en estructura tipo escalerilla que cuentan con secciones de 3x3 metros, las cuales son prefabricas y se ensamblan in situ. Los conectores metalicos vienen instalados en los prefabricados, los poseen un gancho para formar los modulos son cubos de 3x3x3 metros. La vigas que se encuentran en la fachada forman un entramado, el cual hace que la estructura se sostenga entre si, formando una gran viga.

¡Comparte nuestro contenido!