El encargo consistía en dos casas en primera línea frente al mar, en una porción de terreno estrecho, comprimido por el mar y el acantilado. Así, surge de inmediato la pregunta: ¿cómo no caer en la obviedad de la vista al mar, teniéndolo en frente como una vista ineludible sin mediar entre vista y mar? La respuesta, más que mediar, es medir.
Se propone entonces un volumen que se gira en sí mismo para conseguir al mar como sorpresivo, como un golpe de vista, y uno distinto cada vez, como una vista que no se puede anticipar.
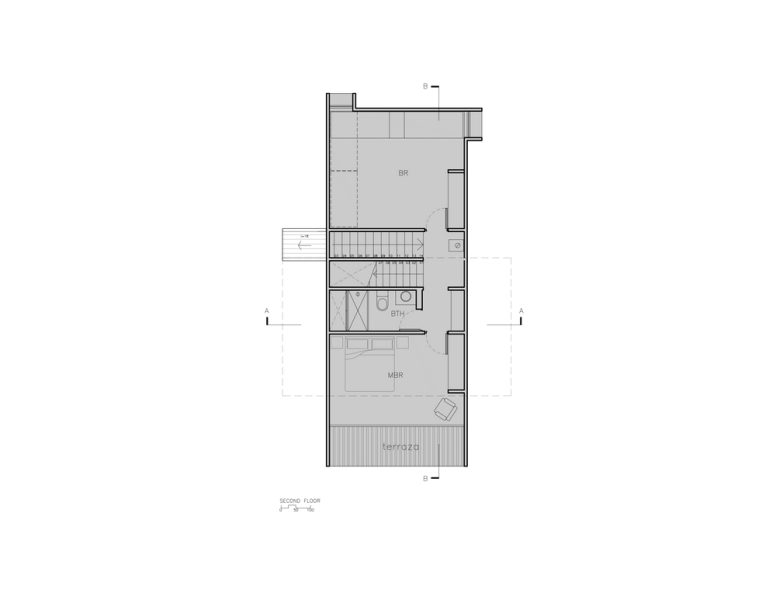
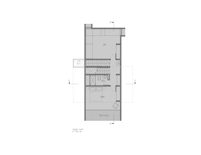
La casa está dividida en dos volúmenes que se apilan uno encima del otro y giran en ángulo recto. Las aberturas se encuentran en los extremos más cortos, en lugar de los lados más largos de los bloques para asegurar diferentes vistas.
Podemos decir que se trata de una obra que logra, no un mar inmenso, único, sino varios, el del roquerío del norte, el de Punta Puertecillo al sur, etc.
Para mejorar aún más las vistas, la residencia se eleva sobre pilotes. Un tercer volumen más pequeño, ranurado entre esta estructura en la planta baja, alberga la escalera de entrada. De este modo comparecen al unísono en el volumen público del 3er piso, las dos realidades que contienen y tensan el volumen: el mar y el acantilado, midiéndose cada uno como fin (finalidad) del volumen elongado.
Marcos de madera de tonos amarillos que rodean las ventanas contrastan con los paneles de madera ennegrecida que cubren los dos volúmenes.
En el primer nivel, puertas correderas de cristal se abren desde el dormitorio principal a una terraza. Una habitación con literas ocupa el otro extremo del piso y tiene dos ventanas estrechas establecidas dentro de marcos sobresalientes. Una abertura se coloca en el lado más corto y el otro en la esquina a la parte trasera de la casa.
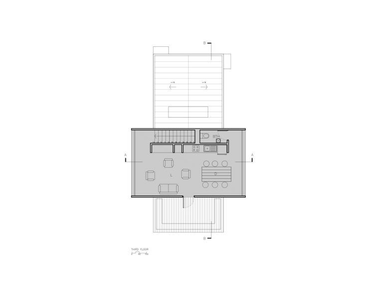
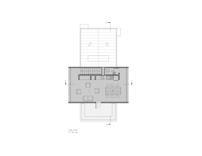
Una cocina combinada, salón y comedor se extiende por el nivel superior, que está flanqueado por dos grandes ventanas.
Los gabinetes de cocina y las estanterías con paneles de madera negra se extienden a lo largo de una pared, ocultando la escalera a su parte trasera, mientras que la mesa de comedor se coloca delante de la ventana en el lado de la montaña.
Las paredes y los techos están forrados con tablones de madera clara, mientras que el suelo está cubierto de tablas ligeramente más oscuras. Los muebles negros que visten los espacios contrastan contra las superficies pálidas.
Fotografias Gentileza de 2DM
[unitegallery Obra_2DM]






























