Edificio CC

Código de equipo: ARQ3061

Universidad: Universidad Técnica Particular de Loja

Sede:  Facultad de ingenierías y arquitectura

País:  Ecuador

Ciudad: Loja

Equipo: Augusto Jose Criollo Astudillo, Jared Fernando Espinosa Ordoñez, Nicole Estephanía Ortiz Rivera,

Profesores guía:

Leonardo Mauricio Pacheco Arias

DOCUMENTOS ADJUNTOS

© Derechos reservados por sus autores intelectuales.

Descripción general

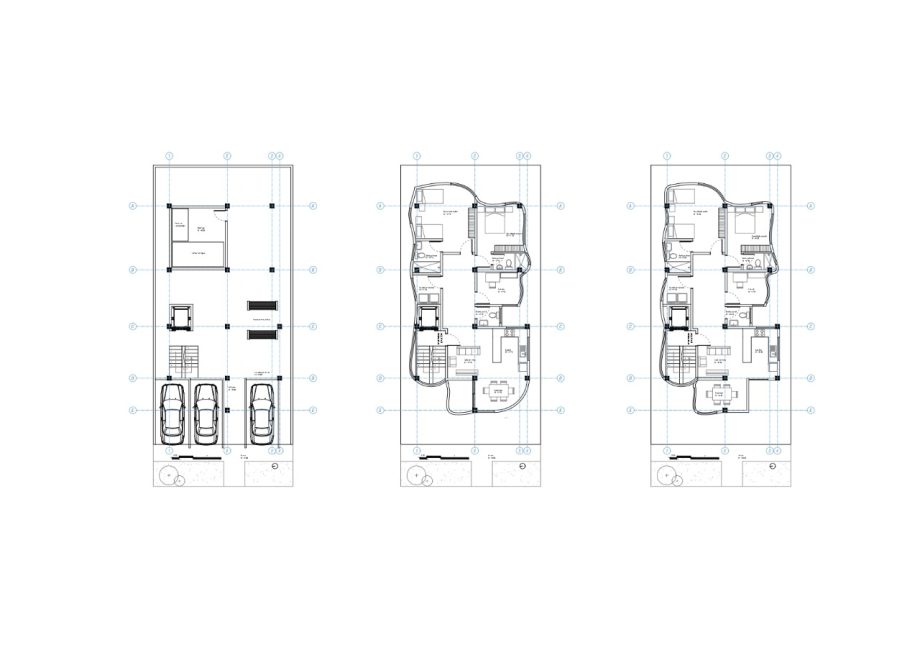
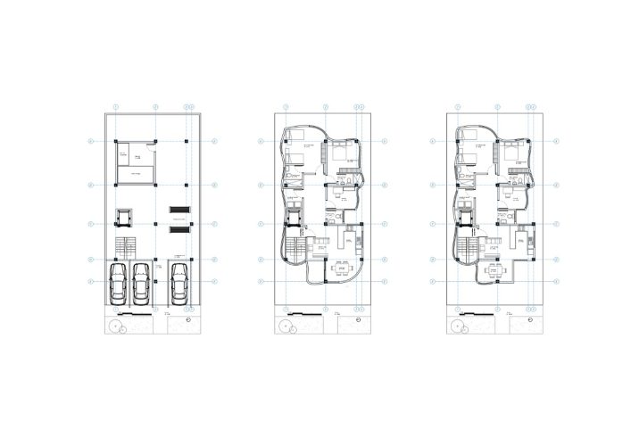
La concepción del proyecto nace de la forma de una célula de carácter biológico, de manera que los usuarios pasarán por el "núcleo", formado por la circulación vertical, de esta área se accede hacia los departamentos y distintas áreas, conformando también un elemento estructural para el proyecto. En este núcleo del edificio se encuentran también los ascensores como elementos esenciales para que cualquier persona pueda alcanzar dependencias a distinto nivel en el hogar, en el edificio. Su existencia puede ser imprescindible para garantizar la igualdad en el disfrute de estos recursos y su inexistencia, ante situaciones de inaccesibilidad puede traer consigo situaciones graves de discriminación. Debido a esto, para que puedan ser utilizados por todos, su diseño debe cumplir una serie de requisitos que hagan accesible y seguro su uso, siendo esto tomado en cuenta para el diseño y distribución de las plantas del edificio.

Fundamentación del proyecto

El proyecto se compone de tres partes principales, la base estructural de hormigón en la que funcionan espacios de acceso, estacionamientos y áreas comunales, el núcleo del edificio que también funcionará como elemento estructural y sirviendo de acceso a los espacios superiores, y el bloque de viviendas conformado por tres departamentos de dos tipos de plantas superpuestas e intercaladas. Una estructura de hormigón armado está formada de hormigón (cemento portland, arena y grava o canto rodado) y de una armadura metálica, que consta de acero estructural de sección circular, la que se coloca donde la estructura, debido a la carga que soporta, está expuesta a esfuerzos de tracción. Este componente se ha escogido basándose en edificios de altura hechos de madera principalmente que cuentan con una base estructural de hormigón, lo que asegura un soporte óptimo y una separación de elementos que puedan significar un riesgo en el suelo.

Estrategia de localización, emplazamiento y resolución programática y espacial

El objetivo de la estrategia de localización y emplazamiento seleccionado para el proyecto busca maximizar el beneficio de la ubicación para los usuarios proyectados del edificio y el aprovechamiento de los elementos naturales sobre la tecnología y la sostenibilidad de este.  El emplazamiento del proyecto tiene el objetivo de buscar la integración del edificio con el entorno, el cual se basó en analizar el lugar considerando la topografía, visuales, accesos, trayectorias solar, vehicular, peatonal y seguridad de estos últimos. Este emplazamiento permite establecer las condicionantes para hacer pertenecer el edificio al lugar, analizando las preexistencias tanto naturales (soleamiento, vientos y precipitaciones), como artificiales (edificios colindantes, perfiles del entorno urbano); lo que ha permitido obtener un proyecto con un aprovechamiento eficiente de elementos naturales en sostenibilidad y una integración adecuada con el entorno.

Propuesta arquitectónica desde el material

El material principal del cual se compone el proyecto y utilizando la madera es el CLT, este siendo usado para la envolvente, mampostería interna y losas; mientras que la estructura del bloque superior de viviendas se compone de un sistema de pórticos de madera de unión viga – columna. La madera laminada es el resultado del ensamblaje de láminas o láminas para formar una única unidad estructural, elementos lineales, curvos o rectos, pero siempre lineales. Con el CLT, en cambio, el montaje de paneles en perpendicular permite la fabricación de placas, placas o superficies, es decir paredes. Además, considerando el impacto ambiental del CLT, ll CLT comenzó a fabricarse en la reutilización de madera menos valiosa. Por lo general, se realiza el diseño y construcción con concreto, y su huella de carbono es enorme en comparación con la madera. El CLT consume carbono a medida que crece el árbol.

Innovación de la propuesta

Para la sostenibilidad del proyecto se ha optado por el uso de cubiertas verdes y paneles solares. Las cubiertas verdes, al incorporar componentes inertes y vivos, son complejos que deben diseñarse en detalle, desde el sistema de sellado hasta la especie vegetal elegida, pasando por el uso y su relación con el contexto y especificidad del medio y edificio. Este componente se ha seleccionado por sus propiedades de absorber el agua de la lluvia, reducir las temperaturas, aportar a la aislación térmica de las cubiertas, e integrarse efectivamente al medio ambiente natural. la ubicación de los paneles solares del proyecto se plantea en la zona de la cubierta accesible del edificio, es una solución ideal para rentabilizar y generar energía para este proyecto de vivienda sostenible. Estos paneles se ubican fuera del área visual para lograr un aspecto natural y habitable y menos técnico con el uso de estos paneles.

¡Comparte nuestro contenido!