En el espacio a habilitar debía instalarse ENGIE Factory, empresa francesa aceleradora de Startups relacionados al mundo de la sustentabilidad, las energías renovables y el medio ambiente,
El encargo consistió en diseñar un recinto que acogiera diversas formas de trabajar y ocupar el espacio, a través de la flexibilidad y multifuncionalidad espacial, promoviendo su uso dinámico, evitando las oficinas privadas y los puestos de trabajo fijos, hacia un trabajo colaborativo, similar a un espacio de coworking.
Las premisas básicas para la concepción del proyecto fueron entonces diseñar un layout con espacios flexibles y de uso mixto, y la sustentabilidad.
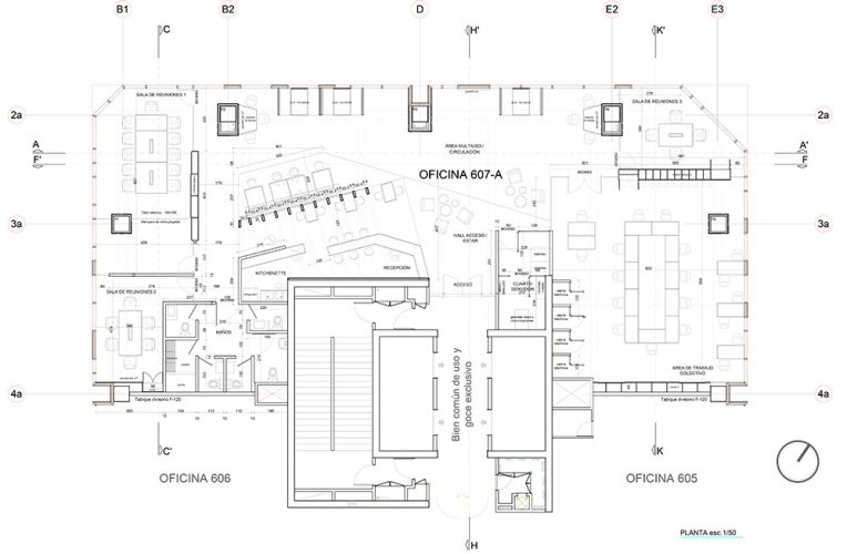
El recinto original era una planta libre con cinco pilares hacia los perímetros, que ocupa la mitad de la planta del sexto piso de la torre donde se emplaza, con orientación norte en su fachada principal, y orientación oriente y poniente en sus fachadas laterales.
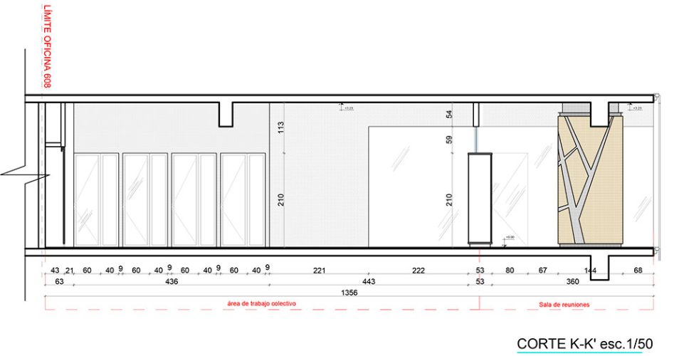
El perímetro exterior en su totalidad es vidriado, lo que permite un importante aporte de luz natural hacia el interior, a la vez que se constituye como una potente fuente de radiación solar, factor importante para el acondicionamiento térmico del proyecto.
La propuesta se constituye por un gran espacio central, de orientación norte, que concentra el acceso desde el exterior, la recepción y cafetería, un área mayor de uso flexible que propone diversas formas de trabajar y reunirse en el espacio, y los accesos a los recintos laterales. En el lado oriente se emplaza el principal recinto de trabajo colectivo y una sala de reuniones en la esquina nororiente. Hacia el lado poniente se localiza la sala de reuniones principal, una sala de reuniones menor, y los baños.
En su concepción se aplican los siguientes principios de sustentabilidad y estrategias optimización de los recursos energéticos:
─ Elección de materiales renovables, como la madera, y el uso del color negro para suavizar la exposición directa de radiación solar, y reducir el encandilamiento en el interior.
─ Optimización de la luz natural y radiación solar a través de la distribución espacial con el fin de reducir el consumo de climatización y luz artificial
─ Ahorro de energía con lámparas led.
─ Optimización de instalaciones y control de consumo a través de la domotización.
─ Utilización de instalaciones de climatización y sanitaria de bajo consumo energético.
─ Incorporación de vegetación.
Se optó por un concepto orgánico y fluido, donde la madera y la alusión a formas vegetales y orgánicas es parte de la estética propuesta, con relaciones espaciales y visuales múltiples, que nacen a partir del núcleo conformado por la recepción y cafetería, área central que se configura a partir de un espacio permeable conformado por costillas de madera, como cerchas que con un cierre perimetral incompleto a base de vidrio capturan las direcciones de los recintos adyacentes, dando cuenta de la actividad constante, la que expone distintas dinámicas de trabajo.
Con el fin de mantener la condición de perímetro libre, todas aquellas divisiones de recintos cerrados se encuentran en el vidrio perimetral con un paño vidriado, manteniendo la relación visual entre los recintos, y la percepción de fluidez espacial.
Se proponen estaciones de trabajo en pilares, casas móviles, muebles fijos divisorios de recintos, y elementos que podrían desmontarse y reutilizarse fácilmente para otro recinto
El cielo en general es descubierto, con sus instalaciones a la vista, para aumentar la percepción de amplitud, pintados de color negro.
La gestión de implementación de vegetación, domótica, gráficas atingentes al espíritu de la empresa, y sistema de acopio de basura estuvo a cargo de Engie Factory, quienes transforman y complementan constantemente el concepto de sustentabilidad en su espacio de trabajo.
[unitegallery EngieFactory]




















