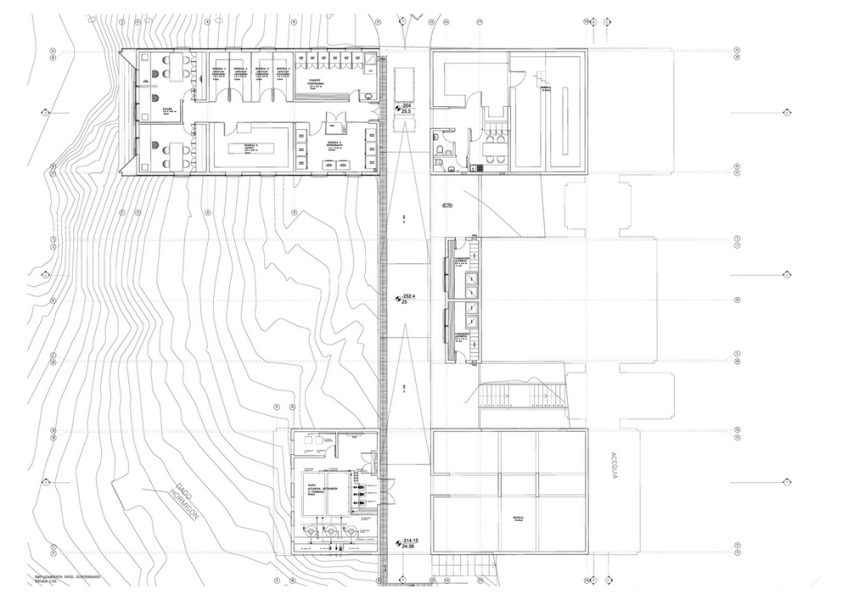
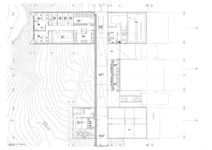
El encargo solicitaba alrededor de 1000 m2 de nuevas instalaciones emplazadas aledañas e inmediatamente al Norte de la construcción existente, considerando los servicios técnicos complementario subterráneos y respetando el orden establecido por la construcción anterior, con una plaza central rodeada por las instalaciones de trabajo y alojamiento. En cuanto al programa, se solicitaron 3 áreas: Área de investigación, Área de uso multipropósito y el Laboratorio Internacional en Cambio Global (LINC-Global).
Considerando lo anterior y la forma del terreno (una península con desniveles abruptos, declarada reserva natural con exclusión humana, cerrando una sección de 1 Km de costa en 1982, siendo una de las primeras de su tipo nivel mundial), el proyecto presenta tres volúmenes paralelos, y distanciados entre sí, que privilegian las vistas al mar (el objetivo de trabajo e investigación), cada uno correspondiente a las Áreas solicitadas, de manera de autonomizar la volumetría del programa y ganar libertad de adecuación a las necesidades específicas de cada sección.
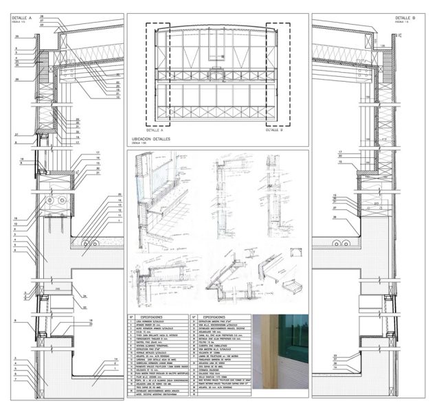
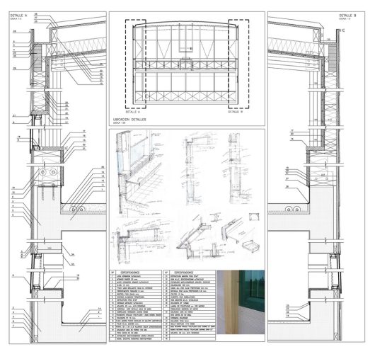
Estos volúmenes son conformados por una secuencia de marcos de madera laminada apoyados sobre zócalos de hormigón parcialmente enterrados en la pendiente. Estos zócalos corresponden a las instalaciones de servicios técnicos de los edificios como son la Sala de Filtrado, el Taller de Carpintería, bodegas y el Pañol de Buceo.
A diferencia del existente, el edificio proyectado responde a las necesidades solicitadas por la nueva carrera de Pregrado de la Universidad Católica, Biología Marina. Con su sede docente principal ubicada en Santiago, las instalaciones de Pregrado de la Estación Costera de Investigación Marina, presentan un uso esporádico, siendo su temporada de mayor afluencia de usuarios en los meses comprendidos entre Noviembre y Marzo, sin superar los 40 alumnos utilizando al unísono las instalaciones comprendidas entre laboratorios de investigación y laboratorios complementarios, destinado al apoyo y práctica de la enseñanza.
[unitegallery ecimarina]





























