Evaluación de Resistencia Estructural de Edificaciones de CLT bajo Condiciones de Incendio.

Código de equipo: ING3910

Universidad: Universidad Central de Chile

Sede:  Santiago

País:  Chile

Ciudad: Santiago

Equipo: Maria Ines Morales, Matia Leal

Profesores guía:

Tulio Carrero Roa

DOCUMENTOS ADJUNTOS

© Derechos reservados por sus autores intelectuales.

Lámina N°2 del proyecto

Descripción general

Evaluación de Resistencia Estructural de Edificaciones de CLT bajo Condiciones de Incendio

Este estudio se enfoca en analizar la resistencia al fuego de la madera CLT de Pino Radiata, utilizando herramientas de diseño y el modelo computacional en SAP2000 v25. Busca contribuir al conocimiento y desarrollo de estrategias efectivas para la construcción con madera en Chile.

Antecedentes Generales

La construcción de edificios con madera maciza a la vista es una tendencia innovadora, promovida por la sostenibilidad y métodos constructivos industrializados. Destaca por su estética y valor agregado, aunque presenta desafíos en seguridad estructural debido a la naturaleza combustible de la madera.

En el ámbito normativo de la protección contra incendios, coexisten dos enfoques principales:

  1. Enfoque Prescriptivo: Establece procedimientos y métodos detallados para asegurar la seguridad estructural.
  2. Enfoque de Desempeño: Proporciona criterios de calidad y flexibilidad al centrarse en los resultados esperados en lugar de métodos específicos.

Cada país tiene sus propias normativas y enfoques de investigación, lo que añade complejidad. En general, las normas estructurales son prescriptivas y especifican cómo calcular y determinar las resistencias. En Chile, la construcción con madera ha ganado popularidad en sectores como residencias, oficinas, hospitales y colegios, destacando por su estética y ahorro en costos de terminaciones.

Metodología

Para simplificar el modelo y considerando que no se tiene la ubicación real de la estructura, se simplificarán las cargas aplicadas utilizando varias normas técnicas:

  • NCh1198: Para calcular el peso propio de la estructura a partir de la densidad del material y determinar las tensiones de diseño como flexotracción, flexocompresión y tensión al corte, aplicando un factor de seguridad de 2.5.
  • NCh1537: Define cargas vivas según los criterios establecidos.
  • NCh433: Análisis del sismo estático.

La estructura principal está compuesta por CLT de Pino Radiata con 5 capas de 40 mm cada una. Los muros y la losa del primer piso tienen un espesor de 200 mm, mientras que la techumbre fue deseñada tipo membrana.

Ilustración 1:. Configuración CLT // Elaboración propia

Resultados y Análisis

Los resultados esperados incluyen evaluar la resistencia de dos modelos de estructuras de CLT sin tratamientos previos bajo diferentes cargas. Se analizará la pérdida de sección debido a la carbonización tras un incendio, esperando que las estructuras soporten cargas habituales como peso propio, sobrecargas de uso y cargas sísmicas. Se espera que la pérdida de resistencia no supere el 35% en las losas y el 10% en los muros después del incendio.

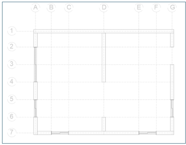
Ilustración 2:. Planta vivienda // Elaboración propia.

En el análisis, se determinó el factor de utilización para cada elemento del modelo estructural comparando las tensiones generadas por SAP2000 con las tensiones de diseño estipuladas por la NCh 1198. Para las losas, se utilizó la tensión de diseño correspondiente a la flexotracción para los valores máximos de las tensiones y la flexocompresión para los valores mínimos. En los muros, que trabajan a tensiones de cizalladura, se emplearon los resultados de Stresses S12 y S13 para evaluar la resistencia al corte.

Ilustración 3: Diseño 3D vivienda SAP2000 // Elaboración propia

Conclusiones

El análisis indicó que el factor de utilización de los elementos estructurales, tanto en flexotracción, flexocompresión como en cizalladura, se mantiene dentro de los valores de seguridad establecidos por la norma NCh 1198 en la mayoría de los casos. Sin embargo, se observó que el muro del eje G es más vulnerable post-incendio debido a la disminución de sección, lo que podría afectar su capacidad para soportar las cargas de servicio.
Esto garantiza que la estructura cumple con los requisitos de resistencia y seguridad en la mayoría de sus componentes. La metodología utilizada, basada en los resultados de SAP2000 y comparaciones con las tensiones de diseño, asegura que los elementos estructurales puedan soportar las cargas aplicadas. Se recomienda reforzar el muro del eje G para asegurar su desempeño óptimo.

Tanto los muros como las losas, incluso con una sección reducida por la carbonización, pueden soportar adecuadamente las cargas de servicio. Esto confirma la robustez y eficiencia del diseño, asegurando que la estructura mantenga su integridad y funcionalidad post-incendio, permitiendo una evacuación segura y óptima para la operación de bomberos y equipos de emergencia.

ILUSTRACIONES

Tensiones Losa Modelo Control

Ilustración 4:
Tensión S11 Losa Modelo Control // SAP2000
Ilustración 5:
Tensión S22 Losa Modelo Control // SAP2000

Tabla 1: Tensiones Máximas y Mínimas Losa Modelo Control // Elaboración propia

. Tensiones Losa Modelo Ensayo

Ilustración 6:
Tensiones S11 Losa Modelo Ensayo // SAP2000
Ilustración 7:
Tensiones S22 Losa Modelo Ensayo // SAP2000

Tabla 2: Tensiones Losa Modelo Ensayo / Elaboración propia

Generación conceptual, solución técnica y creación de valor a través del material

Solución formal y de producción

Cualidad funcional

Impacto y potencialidad de la innovación

¡Comparte nuestro contenido!