El encargo consistía en emplazar 2 galpones prefabricados de 1000 m2 c/u en un terreno de 10000 m2, y proyectar un edificio de oficinas de 500 m2 que entregara la imagen corporativa a la empresa Licanray.
La primera decisión consistió en enfocar los esfuerzos de diseño y presupuesto en el edificio de oficinas y showroom.
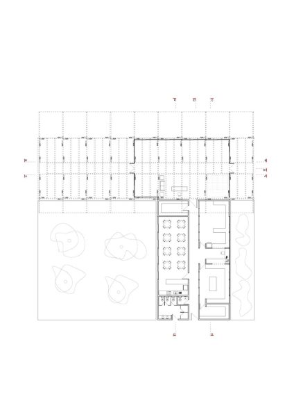
Se plantea el edificio como una barra de 8 m de ancho x 30 m de largo dispuesta en el eje Oriente-poniente paralelo a la calle de acceso, y al frente angosto del terreno. De esta manera el edificio se plantea como la cara visible del conjunto hacia la calle, con 2 fachadas largas principales abiertas, la norte y la Sur, y dos fachadas ciegas, Oriente y poniente.
Los galpones se disponen detrás del edificio de oficinas en sentido norte sur, generando un desfase entre ellos que arma el foso de carga y decarga de los camiones.
Para la estructura del edificio principal se propuso trabajar con madera laminada de pino. Esta se construye en base a pilares diagonales en forma de x que conforman las dos fachadas principales y luego se unen a través de vigas horizontales armando el entrepiso y el techo.
El programa principal de oficinas se levanta un piso para atrapar las vistas lejanas, liberando el primer piso para generar los accesos al edificio y el programa correspondiente al show room de la empresa.
La expresión del edificio está definido principalmente través de su estructura, los cerramientos de vidrio y tabiquería se plantean por detrás de ella, de manera tal que la estructura queda descubierta.
Los techos del edificio cumplen un rol fundamental en la protección de toda la estructura de madera, así como también en la protección del deslumbramiento que se pudiera producir al interior de las oficinas. Esa es la razón por la cual se proyecto un gran alero hacia la fachada norte del edificio.
Fotografías: © Pablo Blanco
[unitegallery ExportadoradeMiel]





















