Ubicado en el centro del pequeño pueblo de Matt en Suiza, este proyecto consiste en un edificio diseñado para reemplazar una empresa de construcción de madera después de que un incendio destruyera la instalación de producción original. La nueva fábrica se asemeja a la antigua, pero se replanteó su construcción y organización, utilizando la madera como material principal, aprovechando sus infinitas posibilidades.
Sobre grandes vigas de madera se colocan dieciséis elementos de madera laminada encolada, ligeramente curvada, mientras que los cables de acero actúan como tirantes que estabilizan la estructura, mientras que las uniones flexibles y placas roscadas los conectan a los pilares.
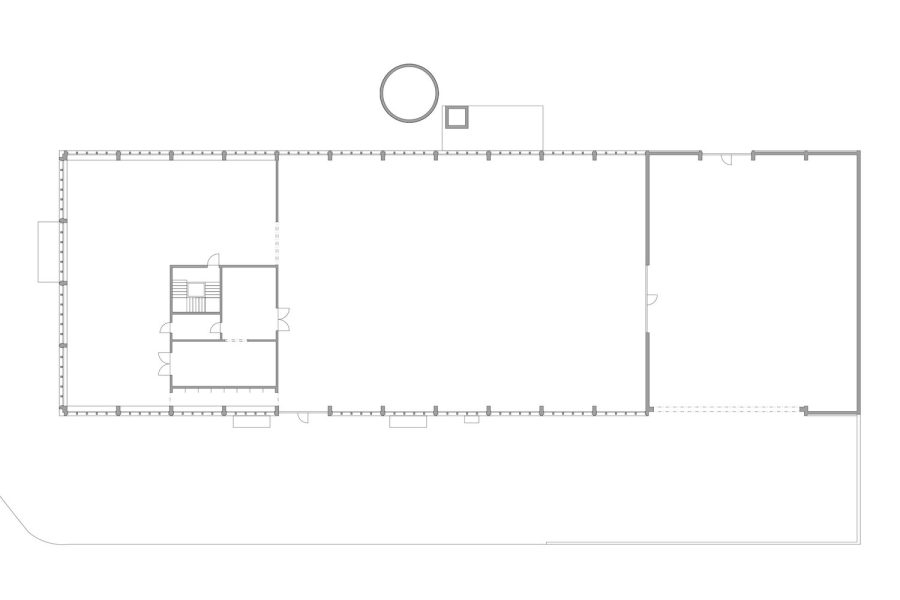
La distancia entre los pilares macizos se refleja en el diseño de la fachada de más de 70 metros de longitud. Son evidentes como divisiones regulares, que se dividen aún más por medio de ventanas delgadas y acentuadas por tirantes verticales de madera. Los tablones de madera de alerce enmarcan e intensifican las subdivisiones, mientras que los bordes de los abetos completan la fachada, dando como resultado un lenguaje cohesivo.
Estructuralmente desacoplada de la planta baja, la fachada de madera funciona como un caparazón externo. El techo con su generoso voladizo, no solo sirve como protección contra la intemperie para la fachada de madera, sino que también lleva un sistema fotovoltaico con una potencia eléctrica de 185 kW.
Las grandes dimensiones del edificio se suavizan con las divisiones de la fachada, reduciendo su escala e integrándose con el entorno. Los procesos de producción, la forma y topografía del sitio y el uso económico de la madera marcaron fuertemente los principios básicos de este proyecto.
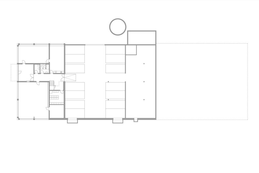
Las maderas de abeto, alerce y roble se utilizaron para el revestimiento interno de oficinas, salas de reuniones y baños en la planta baja y demuestran la versatilidad de la madera como material, siendo utilizada como piso, como elemento acústico en el techo, como revestimiento de pisos, así como estantes, puertas y ventanas. Solo los elementos de uso generalizado, como puertas y pisos, recibieron algún tipo de protección, el resto presentó madera en bruto.
La combinación de diferentes tipos de madera con sus colores, vetas y estructuras particulares, da como resultado una variación espacial que afecta la percepción de cada estancia. Los visitantes y clientes pueden comprender fácilmente la infinidad de posibilidades que ofrece la madera al visitar esta fábrica. La nueva unidad de producción brindó a la empresa la oportunidad de demostrar claramente la versatilidad de la madera como material de construcción y la alta calidad de la mano de obra que la empresa puede ofrecer.
[unitegallery Fabrica_Madera]
















