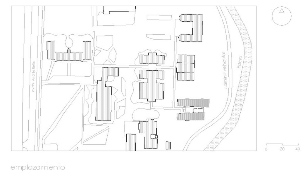
El desarrollo del campus Fernando May, inserto en una zona de baja densidad del extrarradio de Chillán, fue interpretado mediante edificios aislados con un predominio del vacío sobre el lleno, privilegiándose las vistas lejanas y generando al mismo tiempo redes de recorridos y permanencias en el interior del campus.
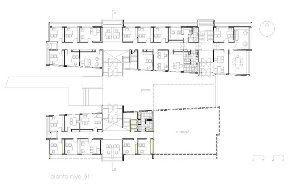
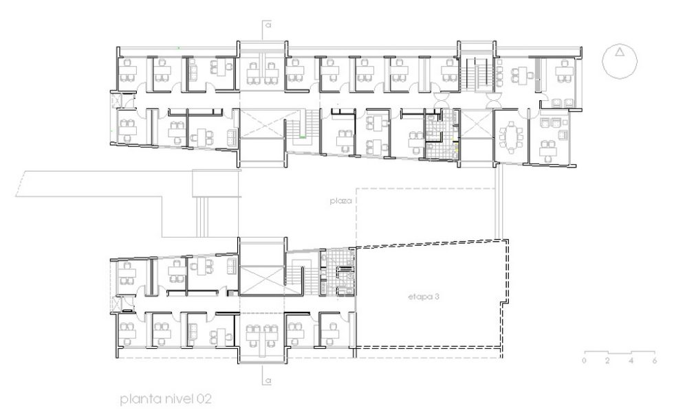
El programa consiste en las oficinas de profesores, salas de reuniones y dependencias de posgrado, con una relación programa-superficie muy ajustado. Los edificios se estructuran en acero y madera, contrarrestando la mala calidad del suelo, y se revisten en madera, buscando la unidad con los edificios más cercanos del Campus.
Buscando entablar un diálogo con las preexistencias del territorio, con su sencilla arquitectura y con el esplendor del paisaje, se privilegió el carácter sólido y compacto de los volúmenes, separados ligeramente del suelo, entre pesados y leves, de clara simplicidad geométrica, recalcando la tensión horizontal mediante las rasgaduras de sus vanos y construyendo una plaza abierta hacia el cielo, dramatizada por la inclinación de la cubierta, cortada a un agua, insinuando un leve carácter ascensional.
El proyecto surge con dos cuerpos mellizos que configuran una plaza, enmarcando la vista hacia la lejanía (orientada hacia la cordillera), mediante una perspectiva invertida configurada por los dos sólidos de madera que se enfrentan. Los accesos, concebidos como vaciados de madera, se transforman en halls de distribución de doble altura que cruzan y relacionan los edificios, desahogando y fragmentando la circulación interior de las oficinas.
Para mejorar el comportamiento térmico, entre otras estrategias, como ventilaciones cruzadas y tabiques ventilados, se plantea una reinterpretación contemporánea del clásico parrón de la zona, construyendo fachadas vegetales hacia el norte y poniente, protegiendo del fuerte asoleamiento del verano local, con enredaderas trepadoras de hoja caduca. Las enredaderas funcionan como una doble piel, que va cambiando de color (del verde al rojo) y espesor, dando cuenta del paso del tiempo en el transcurrir de las estaciones.
[unitegallery facultad_ubiobio]


















