El ayuntamiento de Barberá del Vallés nos encargó el diseño de un gimnasio con vestidores y una pista poli deportiva exterior para el centre de educación infantil “El Bosc” situado en un polígono industrial de la ciudad.
Partimos de los siguientes propósitos:
Situar el gimnasio aislado del edificio de aularios existente, para evitar molestias al funcionamiento de la escuela durante la construcción, hacer una construcción con sistemas prefabricados para reducir el tiempo de ejecución, utilizar sistemas prefabricados o industrializados ligeros para reducir el peso del edificio en un solar donde las condiciones de resistencia del terreno eran muy dudosas (la escuela se sitúa sobre una antigua riera recubierta con materiales de resistencia y cohesión), utilizar materiales de baja energía incorporada y por último, incorporar al diseño sistemas climáticos pasivos para reducir el consumo.
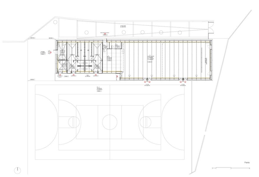
El programa del encargo queda definido por modelo de “gimnasio-sala polivalente” para escuelas primarias del Departamento de Enseñanza de la Generalitat de Cataluña. El edificio es lo más estrecho y largo posible, dentro de los márgenes que ofrece la normativa, por tal de hacer caber el conjunto gimnasio-pista dentro de la explanada que ocupa la pista polideportiva existente. Este emplazamiento ahorra cualquier adaptación topográfica para a la nueva construcción.
El nuevo volumen es contiguo, a la rampa de acceso principal a la escuela, evitando que el edificio proyecte su sombra a la pista polideportiva exterior. La cubierta se resuelve con una pendiente paralela a la rampa por tal de resolver la impermeabilidad del edificio por geometría, una solución más coherente a una construcción basada en sistemas ligeros. Las comunicaciones entre las diversas partes del programa se resuelven a través de un porche orientado a Sur. energético a lo largo de la vida útil del edificio.
La búsqueda de un sistema estructural industrializado, ligero y con un material de baja energía incorporada nos dirigió al uso de la madera como material básico de la estructura y el cerramiento interior del edificio.
La capacidad del panel micro laminado LVL tipo Kerto, ha permitido diseñar una estructura de una lógica similar al “Ballon-frame”, donde el mismo material (Kerto) se utiliza como elemento lineal ligero para constituir los pórticos (separados cada 1,20 mt. Y con 10 mt. De luz) y al mismo tiempo de usa en su formato de panel para revestir las caras interiores, verticales y de cubierta, por tal de estabilizar la estructura frente a los empujes horizontales.
Los sistemas de corte de control numérico nos permitieron un alto grado de precisión y prefabricación, tanto de los elementos del pórtico como del revestimiento estabilizador. El revestimiento interior con panel de madera micro laminada LVL tipo Kerto, asume tres funciones, arriostrar la estructura, garantizar el nivel de protección al fuego de los pórticos y comportarse como a aislamiento térmico.
La piel exterior del edificio se resuelve con paneles de policarbonato multi-celular tipo 343 de “gallina” sobre rastreles de omegas galvanizadas colladas directamente a los pórticos. Esta solución es prácticamente continua a todas las fachadas excepto en el ámbito del porche de circulación. Esta piel transparente protege la madera a la vez que permite visualizarla.
En la orientación sur la piel de policarbonato transparente une, su impermeabilidad, la capacidad de generar un efecto invernadero que permitirá calentar la sala en invierno haciendo circular, de forma controlada, el aire sobrecalentado de la cámara de fachada.
Una plantación de viña virgen de hoja caduca unida al cerramiento de la cámara respecto la sala permitirá controlar el efecto invernadero en verano. En la fachada Norte el policarbonato actúa como lucernario para iluminar con luz natural regular los diferentes espacios del edificio.
Las exigencias del ayuntamiento, frente los posibles actos de vandalismo, así como la necesidad de hacer crecer una planta trepadora en la fachada sur i Este, se han resuelto con la incorporación de una reja de simple torsión que envuelve el revestimiento de policarbonato.
El edificio se percibe de formas diversas al usuario, des de la rampa de acceso aparece casi como un muro, o una silueta, nada mas de noche de insinúa su auténtica condición de edificio. Cuando giramos la esquina, y tenemos una perspectiva más generosa, vemos el volumen real, la manera de acceder y la complejidad de materiales que lo forman en sucesivas.
Fotógrafo: Adrià Goula
[unitegallery Gimnasio_704]






































