HABITAT 5

Empresa / oficina: Estudio Borrachia

Arquitecto a cargo: Arq. Borrachia

Ubicación: Morón, Buenos Aires

País:  Argentina

Superficie construida: 60 m2

Año de construcción: 2013

Fotógrafo: Nicolás Dubini

Ir al Sitio Web

Este módulo construido por su impronta como hecho definitivo en una situación de paisaje concreto, se transforma en el resultado o la verificación de una investigación que ya lleva 10 años de desarrollo dentro del estudio acerca de un sistema constructivo propio llamado SISTEMA MODULAR DE CONSTRUCCIÓN EN MADERA.

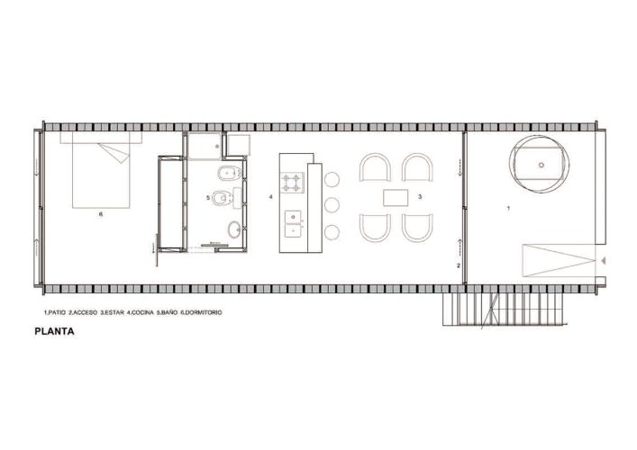
El HÁBITAT 5, fue pensado para cubrir las necesidades de una familia de bajos ingresos y como alternativa a los planes de vivienda social basados en sistemas constructivos tradicionales. Con aproximadamente 60 metros cuadrados, intenta demostrar que la madera, recurso renovable, y el diseño, con objetivos ligados a lo sustentable pueden asociarse para promover viviendas, de un costo considerablemente menor a las tradicionales en estos casos, y con un alto compromiso con el medio ambiente.

Procesos de montaje muy breves sumados a las posibilidades que brinda la autoconstrucción demuestran la versatilidad y facilidad con la que el sistema constructivo ideado por el estudio puede ser puesto en obra, reduciendo costos y todas aquellas complicaciones que surgen cuando los plazos son mucho mas extendidos como aquellos de los sistemas tradicionales.
Además, el hábitat 5 plantea crecimientos y variaciones que le permiten de manera muy simple ampliar sus metros cuadrados y ubicar mas dormitorios, manteniendo sus nociones de doble ventilaciones, orientaciones y agrupamientos de servicios .

A los sistemas pasivos normales ya utilizados en los módulos anteriores, se le suman calefacción y refrigeración por geotermia, calentamiento de agua por energía solar mediante termo paneles en la cubierta, acumulación de agua de lluvia para riego y servicios varios, distintos detalles de aislación según la orientación de cada cerramiento y las épocas del año , la posibilidad de transformar a la pared de ladrillos en un muro " trombe" para calefaccionar el interior en invierno o de permitir que la brisa pase en verano removiendo las aislaciones, y la posibilidad de utilizar la fachada y la cubierta como un soporte verde que intercambia dióxido de carbono en oxigeno contribuyendo así con el ambiente circundante .

El H5, introduce nuevas variables de aprovechamiento del muro de cierre y la cubierta como sistemas productivos que colaboren con el crecimiento económico y la alimentación de las familias que puede albergar. Desde huertas orgánicas en la cubierta hasta cultivos verticales en los muros o apicultura mediante técnicas que tienen que ver con una especie de abeja no agresiva para el ser humano cuya miel se vende a muy alto costo y es exportada al resto del mundo.

Entendemos que con todas estas posibilidades planteadas y considerando sistemas que piensen a la arquitectura como un punto de partida y plataforma de base para futuras y desconocidas variaciones, como por ejemplo este Sistema Modular de Construcción en Madera (SMCM), tal vez encontremos algunas de las soluciones que las sociedades están esperando para resolver el problema de la vivienda.

¡Comparte nuestro contenido!