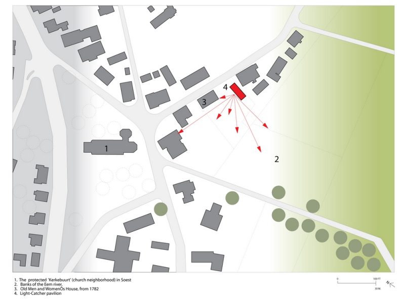
Kerkebuurt (barrio de la iglesia) en Soest, Países Bajos, es un pequeño centro histórico que ha sido nombrado en su totalidad “zona rural protegida”.
Uno de los edificios más característicos del área es la antigua “Casa de Ancianos” de 1782. Originalmente consistía en tres construcciones que posteriormente fueron combinadas en una vivienda. Su propietario actual quería ampliar la misma, pero sus planes fueron truncados por el “Rijksmonumentendienst”del pueblo (institución que protege los edificios considerados monumentos). Se decidió entonces construir un pabellón en el jardín, donde antes se encontraban dos pequeños cobertizos. El pabellón es en cuanto a tamaño una vivienda extra. Contiene abundante espacio para almacenamiento y puede al mismo tiempo ser usado como residencia de invitados o taller de trabajo. Para sus propietarios significa sobre todo un espacio interior adicional de uso flexible, provisto de una gran terraza parcialmente cubierta.
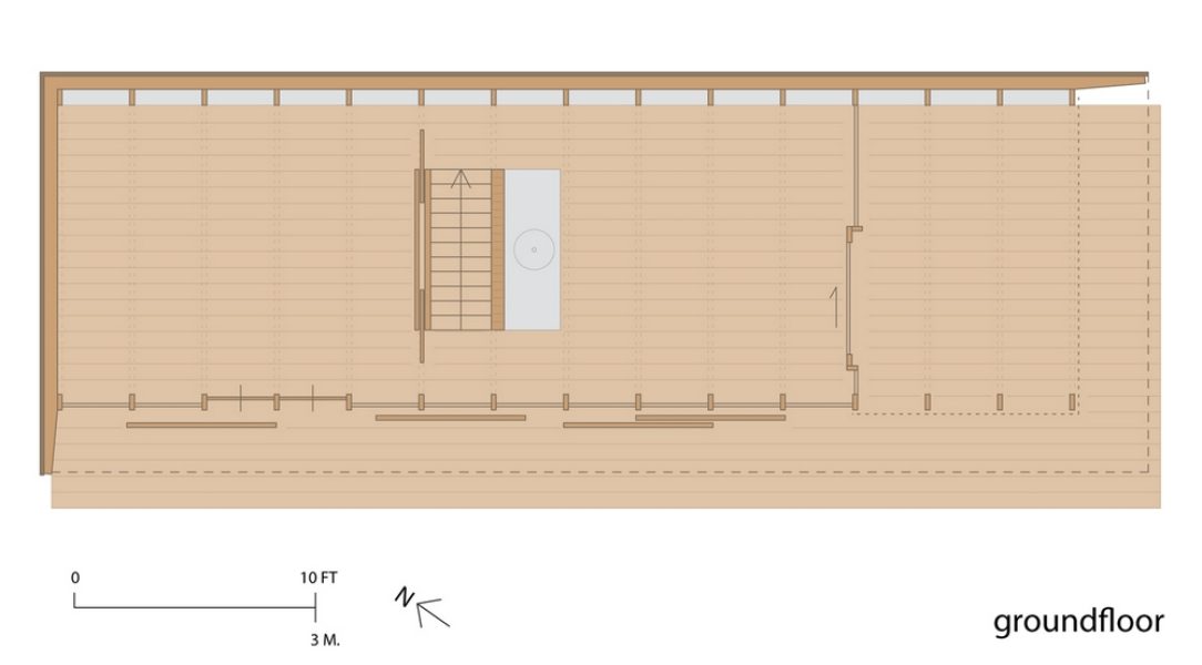
El pabellón consta de dos niveles: un subsuelo y una planta baja. Para el subsuelo fue vertido hormigón sobre un encofrado de madera rugosa que al fraguar retiene la textura de la madera del encofrado. Su perímetro fue revestido con una viga de borde de madera de alerce. Sobre la misma se apoyan las vigas del piso que sobresalen hacia el lado sur creando una terraza voladiza. La luminosidad del pabellón de jardín otorgada por su esbelta construcción y la abundante presencia de vidrio se ve acentuada por la diferencia de nivel entre el jardín y el piso de la planta baja: el edificio parece flotar. Un detalle especial es la introducción de una franja de vidrio a lo largo del perímetro de la viga de borde entre el subsuelo y la planta baja. Esto permite el contacto visual con el mundo exterior y también entre niveles, ya que el piso entre los pilares de madera también es vidrio.
La construcción superior fue totalmente realizada en madera. Para ello fueron colocados 15 apoyos de madera de alerce con una distancia de 90 cm de eje a eje. Los paneles de la parte trasera del edificio y los que dan hacia la calle le otorgan rigidez al edificio. La parte interior de estos paneles está cubierta con madera de alerce contrachapada y la parte exterior con tablas de madera rugosa pintadas de negro. Así el pabellón vuelve su espalda a sus vecinos y hace pensar en un cobertizo agrícola. Hacia el jardín se abre completamente: tanto el lado sur como el este son totalmente vidriados. De esta forma el pabellón actúa como un “atrapa luz” y a su vez ofrece una gran vista del centro histórico y de los alrededores del río Eem.
Siempre que sea posible, la construcción cumple diversas funciones. De esta forma los apoyos de madera del lado sur también actúan como marcos de ventana. Adentro, contra el muro cerrado posterior al norte, estos apoyos conforman una serie de estanterías para libros. Incluso las persianas corredizas son en su totalidad de madera de alerce: seis cerramientos verticales ranurados colocados a la cara exterior del vidrio que pueden deslizarse uno a lo largo del otro, haciendo posible una enorme variación de combinaciones en cuanto a translucidez-opacidad. Para ello no es necesario ningún mecanismo adicional: estos cerramientos se deslizan suavemente a mano a lo largo de ranuras en la madera del piso y del umbral superior.
Un núcleo rígido y esbelto ubicado en el centro del pabellón conecta ambos niveles. De hecho se trata de una pared hueca que contiene la ventilación, calefacción y otras tuberías necesarias. Incluso las puertas corredizas han sido integradas: tanto en el subsuelo como en la planta baja pueden convertir el espacio único en habitaciones separadas.
Este modesto pabellón que sorprendentemente parece grande en su interior, forma una totalidad refinada gracias a la precisión con que fue detallada. Este proyecto intenta demostrar que la arquitectura contemporánea puede existir pacíficamente en una zona de valor histórico, siempre que pueda respetar su entorno en cuanto a calidad y artesanía.
Fotografías: Luuk Kramer y Robert Poeze
[unitegallery Light_CatcherHouse]























