El proyecto está situado en la Isla Tautra en el Trondheimsfjord. Es un nuevo monasterio para 18 monjas, con una pequeña iglesia y todas las instalaciones necesarias para vivir, tales como áreas de producción, entre otras.
Los clientes son monjas de distintos países, especialmente de los Estados Unidos, pero todas de la orden Cisterciana, unidas por una visión común de crear un nuevo convento en la Isla Tautra. En esta isla existía un monasterio Cisterciano creado exactamente hace 800 años, del cual solo quedan ruinas.
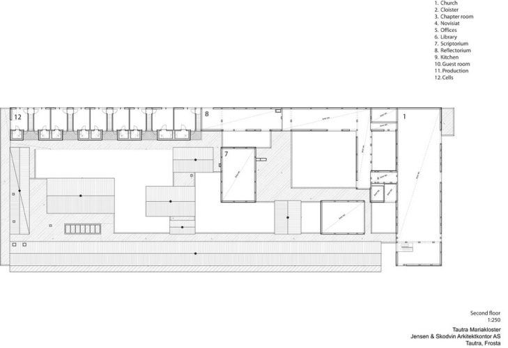
Un aspecto importante de esta institución es el carácter introvertido del día a día de las monjas. Esto obviamente tiene implicancias arquitectónicas.
Una de nuestras primeras ideas fue crear un edificio bajo con una serie de jardines, que permitiera la entrada de luz y creando un sentido de privacidad y exclusión, ofreciendo al mismo tiempo las espectaculares vistas a través del fiordo. Por ejemplo, en los refrectorios y el comedor, donde todas las monjas se sientan al mismo lado de la mesa, como en la última cena de Da Vinci, mirando silenciosamente a través del paño de vidrio hacia el mar y las montañas en el lado opuesto.
El programa original se redujo en un 30% al eliminar todos los corredores en el projecto. Esto fue posible al analizar la manera en que un monasterio funciona. Por lo general las monjas se reunen cuando están en una de las habitaciones principales. Esto significa que estas habitaciones actúan como corredores y áreas de circulación.
La mayoría de estas habitaciones no se repiten, y tienen requerimientos muy distintos unas de otras. Esto también implica que aparece la necesidad tanto de tener libertad arquitectónica en cada habitación, y de tener luz natural en cada una ya que el programa está distribuido en formato horizontal.
Por lo tanto, el proyecto consiste en un sistema de habitaciones de distintos tamaños, conectadas en las esquinas y con espacios entre ellos que crean 7 jardines. Las monjas han sido clientes pro activos, y han diseñado el paisajismo y los cierros perimetrales alrededor del convento y dentro de los jardínes, con la ayuda de profesionales de la congregación local.
El edificio está construido con madera laminada, de 215x215mm. Esta medida permite enmarcar todos los muros de manera tal que las esquinas se resolvían intrínsecamente, por que los pilares siempre cubrirían la esquina completa. Esto fue algo bastante importante en este projecto, donde se debían resolver varias esquinas en la planta. No existe módulo en la planta que se repita, excepto donde los cuartos fueran similares (las celdas).
Las columnas se consideraron elásticas, por lo que cualquier dimensión que se necesitara para una habitación particular podía ser usada. Esto resultó en una planta compleja. Es completamente ortogonal, sin embargo debe resolver las esquinas que aparecen al trabajar bajo esta ley.
Las abrazaderas para el viento se ejecutaron de acuerdo a una simple regla. Donde el ingeniero quisiera una abrazadera, hacíamos una conexión entre nodos, desde un nodo a nivel de piso a otro nodo a nivel de cielo. Dadas las distintas dimensiones en planta, se obtuvieron abrazaderas de distinto tamaño, las cuales al ser del mismo diámetro que los pilares quedan siempre expuestas.
Discutimos sobre hacer los pilares de distintos tamaños, por que algunos eran más largos de lo necesario. En este sistema tectónico, el ahorro de tal refinamiento estructural comprometería la elasticidad requerida, y crearía una multitud de nuevas variaciones en los detalles.
Además, aumentaría los costos según el constructor. Así, se decidió hacer que las dimensiones de los pilares calzaran con el ancho de los muros. En ciertos puntos esto no es suficiente, por lo que se requiere de mayores dimensiones, pero solo en un sentido, por lo que seguimos la lógica tectónica de la planta.
Discutimos sobre la posibilidad dejar expuestos los pilares hacia el exterior. Esta solución es muy peligrosa en cuanto a la durabilidad, por lo que buscamos un revestimiento que pudiera hacer las veces de impermeable y que al mismo tiempo fuera lo suficientemente liviano para no ser una carga estructural.
Encontramos la piedra y luego de una larga conversación con la cantera, encontramos que la manera más económicas de conseguir la materia prima. Resultó ser la solución más barata en cuanto a precio por metro cuadrado para dimensiones fijas, dada la posibilidad de cortar la piedra de manera variable.
Esto fue un buen descubrimiento ya que el presupuesto del monasterio era relativamente bajo. Las ventanas del muro exterior siguen la lógica de la geometria del revestimiento de piedra y tienen restricción de altura, pero con ancho libre.
[unitegallery Monasterio_Tautra]























