El proyecto Movicenter nace de la necesidad del mandante de reconstruir en el corto plazo los edificios dañados por el terremoto del año 2010. Para esto, el programa de trabajo se dividió en dos etapas de construcción: La ampliación con más de 25.000 m2 de nuevos edificios para el Autoshow y Retail; y la reconstrucción de las edificaciones existentes, donde se debió reemplazar, reparar y renovar distintos sectores del proyecto.
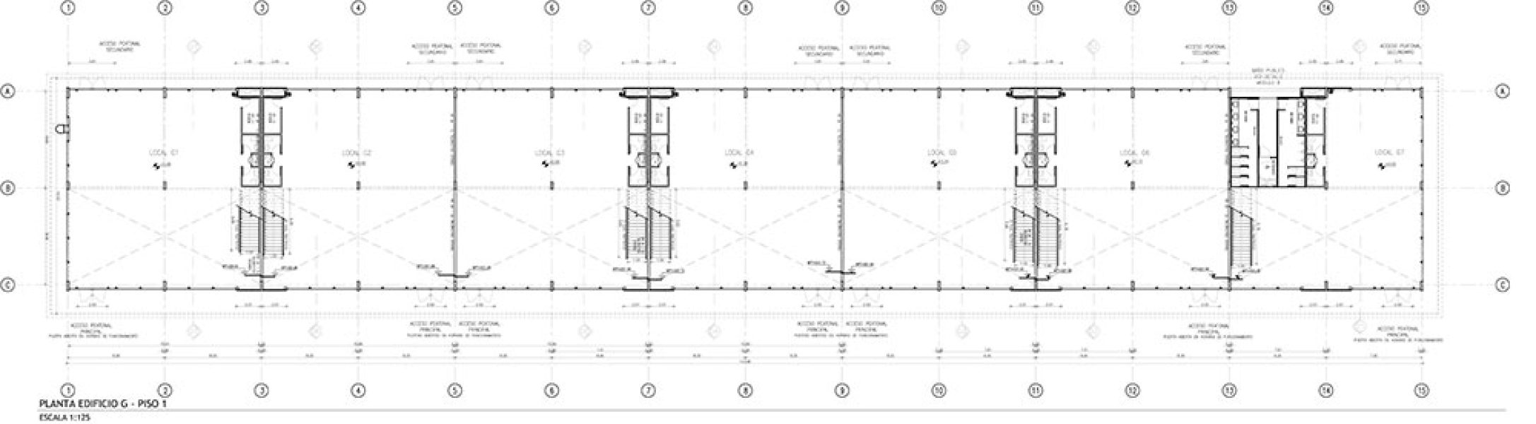
Movicenter se enfoca en la venta de autos nuevos y usados y en la oferta de neumáticos, accesorios y repuestos. Con esto en mente Onsite M+D desarrollo un plan maestro que permitiera que la gran mayoría de los locales pudieran ser vistos por el cliente desde el momento de que se hace ingreso al lugar. La circulación vehicular principal es fluida y ordenada, y recorre el proyecto rodeando un espacio central que alberga una pista de prueba de automóviles y un patio de comidas para los clientes y para la realización de múltiples eventos.
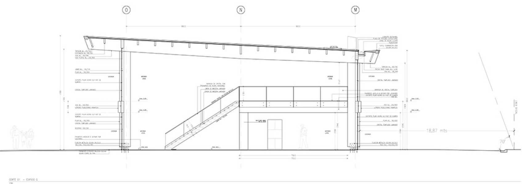
Dado los plazos en que se debía desarrollar el diseño, se opto por la implementación de un sistema de estructuras fabricadas off-site, de tal manera de poder trabajar en la construcción de más de 9.000m2 de subterráneos y la urbanización, mientras se avanzaba en la fabricación de los galpones. Para esto se desarrollo un diseño modular de estructuras de madera laminada, las que permitieron una rápida fabricación y montaje. A su vez, este sistema permitió lograr grandes luces, muy importantes para lograr ubicar la mayor cantidad de autos al interior de cada local.
Las maderas fueron tratadas con un tinte albayalde y fueron combinadas con colores llamativos relacionados al antiguo logo de Movicenter. Estos colores se trabajaron en el diseño de una fachada ventilada de paneles Trespa Meteon disponiendo una combinación de barras verticales que logran un contraste con la fuerte horizontalidad de los edificios. Esta propuesta fue muy bien acogida por el cliente y se transformo en la nueva imagen corporativa de Movicenter, presente ahora en todos los elementos gráficos relacionados a la empresa.
El proyecto se implemento en conjunto con un sistema de fachadas vidriadas de cristales templados-laminados. Estos se anclan a la estructura principal a través de conectores de acero inoxidable que permiten un movimiento independiente a las estructuras de madera, evitando su compresión ante movimientos sísmicos.
El proyecto ha logrado cambiar la percepción de Movicenter, entendiéndolo como un gran centro del automóvil, entregando una imagen unitaria y armónica entre los distintos sectores del proyecto.
Fotografías ©Matías del Campo
[unitegallery Obra_Movicenter]




















