Las nuevas oficinas de la empresa de turismo y servicios Mahinatur, ubicadas en Hanga Roa, Rapa Nui debían entregar al equipo de trabajo un mayor estándar de confort al mismo tiempo que ayudaran a realzar la imagen de la empresa.
Mahinatur es una empresa familiar con la misión de “Contribuir al desarrollo de un turismo sostenible y sustentable, a través de experiencias de viaje que superen expectativas, basados en (su) calidad, profesionalismo y dedicación por los detalles.” Por lo tanto, el diseño debía ayudar a posicionar a la empresa como líderes en innovación y calidad dentro de la isla, poniendo énfasis en su compromiso con el desarrollo sostenible y un enorme respeto por su entorno y la cultura local.
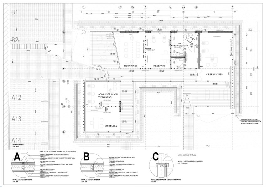
En este contexto privilegiamos la madera como material estructurante de la obra, para cumplir con los estándares de sustentabilidad requeridos y poder dialogar con las tradiciones constructivas polinésicas.
Parte de las solicitudes del cliente fueron que el diseño contara con cierta flexibilidad en sus recintos o la capacidad de crecer en el futuro, que se luciera la piedra volcánica local y también el uso de palmex. Es por esto que se eligió un sistema de cerchas y pilares laminados que permitirían unir algunos recintos y se dejó la techumbre “abierta” en la sala de operaciones para seguir creciendo con otros módulos de ser necesario. A esto se sumó la idea de usar zinc como revestimiento exterior, a la usanza de los pae pae o chozas locales.
El recinto colindante al galpón, donde se limpia y se guarda la flota completa de buses, camiones y jeeps de la empresa, debía facilitar la coordinación de los servicios (drop in / drop out, tours grupales y privados, rent a car y servicios especiales) y asegurar un control directo de las faenas. Es por eso que tanto las oficinas de gerencia, reservas y operaciones tienen una vista directa a las labores que se desarrollan en el galpón. Mientras que administración y finanzas y la sala de reuniones se vinculan con la entrada del edificio, favoreciendo la recepción de personas externas a la empresa.
Cada recinto se encuentra aislado del resto y se unen por un taupea o corredor techado al exterior. Este sistema parecido a las casas patronales chilenas es muy común en la cultura maorí, donde el clima cálido hizo que el uso de los interiores cerrados estuvieran relegados al sueño y todo el resto de las actividades sociales se dieran bajo la sombra de los taupea.
En términos de diseño sostenible se privilegió el uso de la madera presente en estructura y en las cubiertas de muebles, mesas y escritorios, así como la ventilación cruzada para todas las oficinas, las cuales cuentan con ventanas correderas sobre los ventanales de accesos para permitir una ventilación constante de los recintos. Por temas presupuestarios la captación de energía solar y aguas lluvias quedaron relegadas a una etapa futura.










