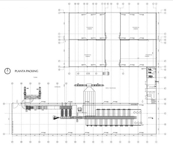
El proyecto contempla la construcción de un packing de fruta orgánica. Orgánico en cuanto requiere de la construcción de una imagen asociada a cultivos limpios y libres de pesticidas. Las construcciones pre-industriales por la génesis de su elaboración se levantaban a partir del uso de materiales no seriados, es decir producidos artesanalmente, lo que se traducía en construcciones que traían la forma con variación desde su génesis.
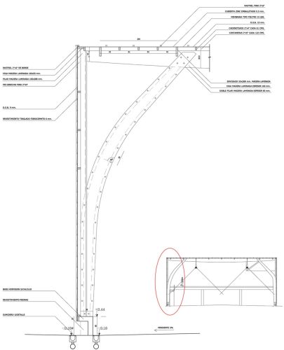
Hoy en día en que la mayoría de las construcciones se levantan a partir de elementos constructivos producidos industrialmente en serie, inevitablemente ordenan un lenguaje constructivo repetitivo y estandarizado. Esto se traduce en edificios que cantan a la técnica que los hizo posibles, es decir a la perfección repetitiva de medidas asociadas que construyen una imagen de perfección propia de un lo sintético, hecho a máquina.
Sin dejar de lado la necesaria producción en serie de los elementos constructivos que componen el edificio, hemos buscado una forma con variación , es decir una serie asociativa de elementos aleatorios en base a una cantidad limitada de módulos prefabricados , de manera de no encarecer y lentificar la construcción, procurando en todo momento levantar una envolvente arrítmica y seriada que juegue con sus propias posibilidades expresivas y constructivas, forzando incluso a construir revestimientos, celosías y vanos a partir de las propiedades estéticas y mecánicas del material, a un mínimo costo.
[unitegallery Packing_Greenwich]































