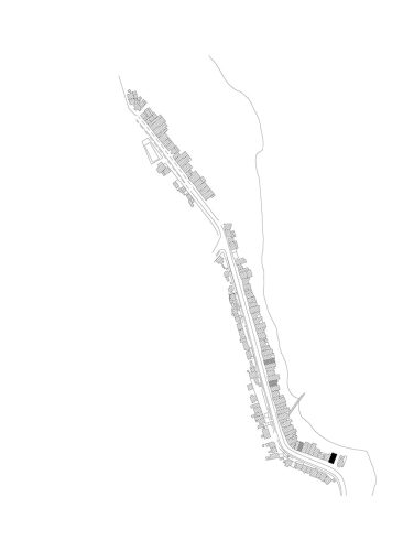
Esta obra concluye otros tres proyectos anteriores, conformándose como complemento en la búsqueda de un sentido de barrio. Considerando los emprendimientos hoteleros que se estaban desarrollando, surge la necesidad de crear un espacio público y común en donde habitantes y visitantes se encuentren.
Mediante un espacio techado vinculado al arte y al diseño, se propuso disponer de un café y restaurante pequeño que supliera esa deficiencia. El proyecto debía desarrollarse en un palafito a medio re-construir después de un incendio.
Era complejo que una cafetería pudiera autosustentarse, por lo que se decide integrarla a un espacio público de un pequeño hotel de pocas habitaciones. A partir de este programa nace el principio de diseño y desde el cual el palafito, el último de este grupo, asume el compromiso de emplazarse en correspondencia a los códigos y escalas del barrio.
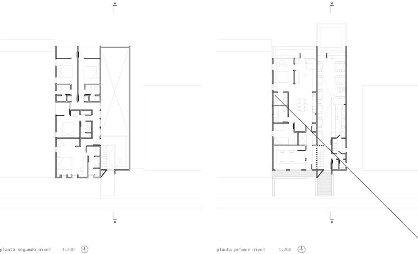
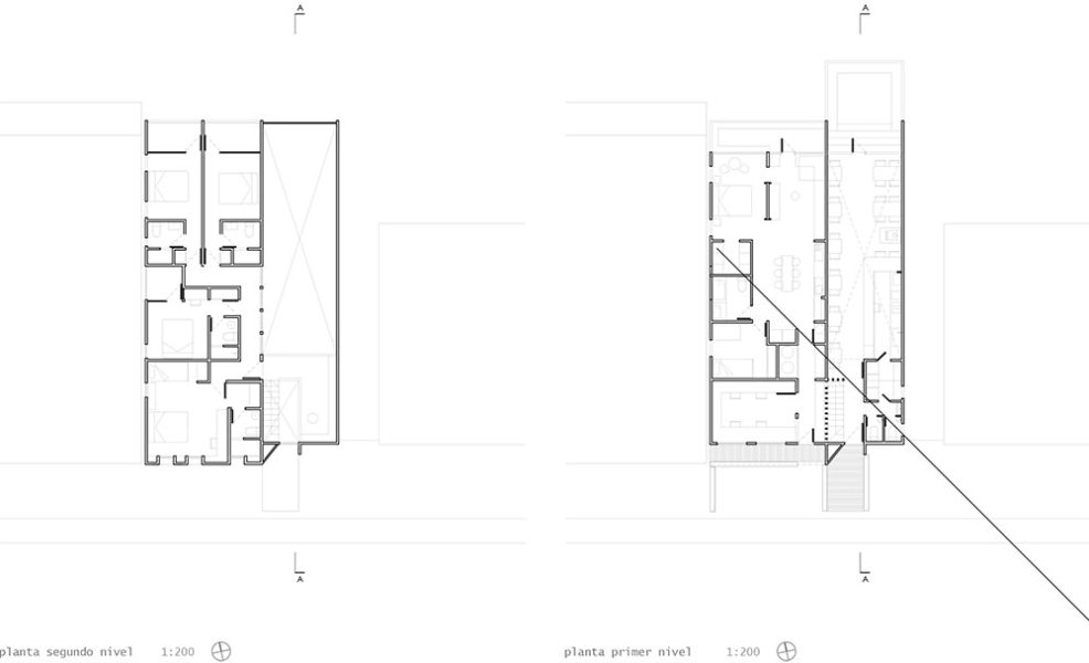
Esta problemática supuso separar formalmente los programas, entendiendo visualmente dos proyectos independientes, “hotel y cafetería”, pero con un acceso común a ambos.
El espacio público se propuso como un gran exterior cerrado por dos fachadas en triple altura, simulando la situación existente del ENTRE los palafitos, y desde donde deriva su nombre de “Patio”. Esta triple altura permite a su vez decorar y montar exposiciones itinerantes, constituyendo un espacio que ofrezca una mirada y pensamiento de “lugar”.
Para la idea de “Patio”, se propuso una cubierta traslucida, agudizando y enfatizando la idea de un espacio exterior y público como un patio. El acceso a las habitaciones se alimenta desde este espacio público, mediante espacios abalconados: estar y recorrido hacen presente este lugar como punto de encuentro único.
Con el fin de constituir una cercanía y relación con el mar, se propuso que los espacios y habitaciones estuvieran abalconados sobre el mar, techados y traslucidos, para que fuera una suerte de zona intermedia bajo la cual, sin importar las condiciones climáticas, se estuviese en contacto con el exterior.
La cafetería, en tanto, remata su espacio en una terraza desde donde se baja aproximándose al mar, inundándose en los periodos lunares más altos, dramatizando su relación con el mar y dejando los escalones como gradería para la contemplación del mar, la fauna y el paisaje.
[unitegallery Patio_Palafito]

















