La madera, como material para la construcción, se encuentra en un momento privilegiado en lo relativo a su producción industrial en Chile, sin embargo, tiene poco desarrollo en cuanto a diseño y prefabricación con valor agregado, además de un cierto desprestigio en cuanto a su uso a nivel social.
Si se suma a eso un contexto internacional favorable, donde el precio del acero y la energía sube, y existe creciente preocupación por trabajar con materiales de características sustentables, es necesaria e importante una investigación que exponga y proponga nuevas posibilidades para el uso de la madera en la arquitectura, de modo de entregar viviendas eficientes energéticamente.
Frente a la incógnita de qué manera transferir tecnologías y dar un valor agregado a la madera, la presente investigación opta por explorar las posibilidades de diseño de sistemas constructivos con la pieza estándar de Pino Radiata, aserrada y dimensionada, que hoy es el elemento para la construcción de mayor producción y disponibilidad en la industria maderera nacional.
Los resultados de esta investigación son puestos a prueba y verificados con la construcción de prototipos de vivienda, que son diseñados con criterios de arquitectura bioclimática, que garantizan un aporte en cuanto a confort y la eficiencia energética.
El proyecto Fondef D06I1034 tiene el objetivo de fomentar el uso de la madera en la construcción de viviendas en Chile a través del desarrollo de nuevas soluciones tecnológicas asociadas al concepto de “Diseño por envolvente” que mejoren las condiciones de habitabilidad, seguridad y durabilidad de la vivienda de madera, a través de nuevos complejos de muros y techumbres ventiladas, además de pisos eficientes, para viviendas de entre 1000 y 2000UF.
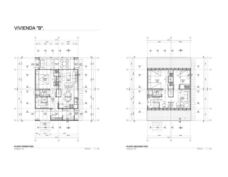
Diseño de los prototipos
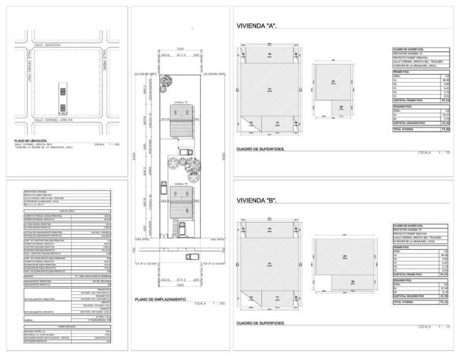
Los Prototipos de Vivienda para Traiguén, tienen la finalidad de aplicar algunos de los sistemas constructivos desarrollados en la Investigación Fondef DO6I1034 “La Buena Casa”, generando además una forma adecuada para cumplir con los requerimientos programáticos y de eficiencia energética propios de una vivienda del segmento entre 1000 y 2000UF, ubicada en esta zona climática.
Utilizando los sistemas: Envigado de Hormigón -de buen comportamiento acústico y térmico para los pisos-, Muro envolvente 2×4 –con aislante y cámara ventilada para un buen desempeño térmico, durante invierno y verano respectivamente- y Cercha casetón, -también con aislante y cámara ventilada, para evitar el sobrecalentamiento a través de una estructura de techo flexible para hacer futuras ampliaciones- el proyecto verifica la necesidad y eficiencia de la prefabricación en la arquitectura en madera.
Dentro de un terreno complicado para la finalidad del proyecto, por su poco frente y escasa orientación Norte, la forma de la vivienda, busca conseguir una envolvente continua que genere espacios intermedios -como logia y zaguán hacia el Sur e invernadero hacia el Norte- protegiendo al interior de las fuertes lluvias con viento de la zona, además de entregar una clara orientación, con los espacios servidores –logia, zaguán, hall de acceso, baños y cocina- con ventanas menores hacia el Sur; y los espacios servidos –estar, dormitorios e invernadero- con ventanas mayores hacia el Norte.
[unitegallery Proto_traiguen]















