El prototipo se emplaza en un conjunto que adquiere la dimensión de un pequeño barrio, un barrio para familias de ingresos medios.
El prototipo mencionado se planteó como una alternativa a los modelos de la empresa con el siguiente programa:
– Terreno de 10 x 20m
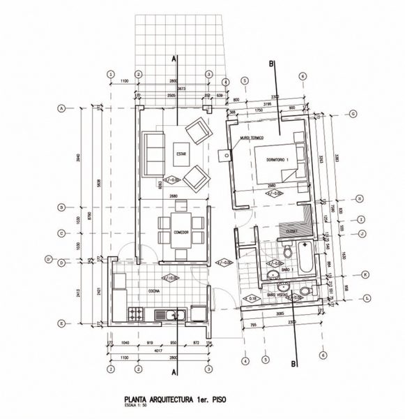
Primer Piso
- estar- comedor
- cocina
- dormitorio principal c/baño
- recibo
- baño visita
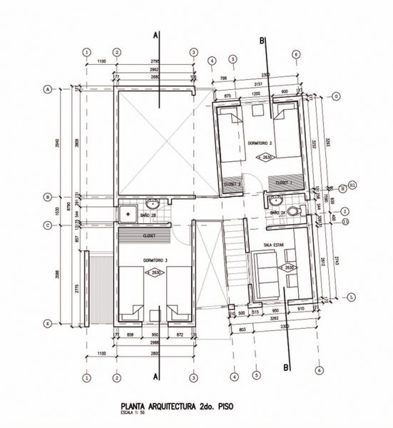
– Segundo Piso
- 2 dormitorios
- Baño
- Sala estudio
Condiciones:
Tanto el estar como el dormitorio principal deberán abrirse hacia el interior del sitio (no hacia la calle).
El encargo consideraba la necesidad de cambiar la percepción generalizada de la madera como un material no adecuado para viviendas. Tal percepción, debería cambiarse.
A largo plazo, construyendo con estándares de primer nivel que garantizan buena duración, confort, bajo gasto energético, etc. A un plazo más corto a través de una “buena arquitectura”, que cree condiciones espaciales y de usos que sean perceptibles como positivas.
Este segundo punto es el objetivo principal del diseño de este prototipo. Para determinar las propiedades de esta “buena arquitectura” las hemos separado en unas que tienen que ver con el hecho de construir en madera y otras que no tienen que ver con tal hecho. Comenzaremos por las últimas.
Propiedades de la arquitectura que no están relacionadas con la madera:
a) Lograr un buen espacio interior:Romper la monotonía propia de las casas de bajo costo que habitualmente tienen
programas extensos de muchos recintos pequeños, privilegiando algunos espacios que tengan medidas de altura o de longitudes mayores.Usar las entradas de luz para acentuar las condiciones del espacio Estudiar orientaciones.
b) Trabajar el espacio exterior:
Logrando un buen uso del sitio, con un amplio jardín interior y los espacios principales relacionados con dicho jardín.
c) Contribuir a producir un espacio urbano digno:
- Constituyendo una espacialidad para la calle por medio de fachadas altas y de los espacios que ellas conforman.
- Usar los colores como tema urbano. Para el prototipo, que es único, se prefirió el blanco como color de base. Algunos elementos de la fachada podrían ser personalizados por el propietario (color de la puerta de acceso).
Propiedades de la arquitectura relacionadas con la madera:
Características no tectónicas de la construcción en madera:
d) Construcción liviana, prefabricada, y en seco, lo cual da ventajas de velocidad,
economía, baja energía.
e) Conseguir buenas condiciones de habitabilidad y confort, propias de las características aislantes de la madera.
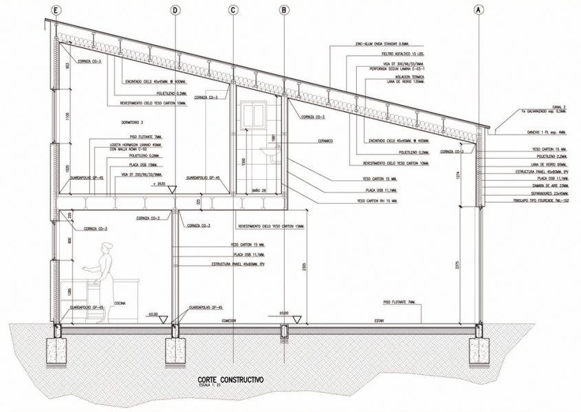
f) En relación al tema acústico se aplicarán soluciones para dar condiciones de aislamiento comparables a otros materiales especialmente en el piso del 2° nivel.
g) En relación al tema térmico, si bien la madera presenta evidentes ventajas de aislación en relación a otros materiales de construcción, su punto débil consiste en tener una baja inercia, lo cual se hace crítico cuando se trata de la protección del calor. Esto lleva a usar sistemas eficientes de ventilación en el techo.
Características tectónicas de la construcción en madera:
Construcción en base a “cajas” constituidas por planos continuos (herencia
del balloon framing) con ventanas a modo de perforaciones.
Usar las características de “mueble” de madera en el interior tanto al tacto como a la vista.
Hacia el exterior usar la madera pintada acusando texturas de la madera (corte
aserrado) y las tramas de las uniones de los tinglados y de los paneles.
Estudiar el modo de resaltar las características de flexibilidad de la madera
a lo largo del tiempo proponiendo sistemas de ampliación o de mejoramiento (esto no
se ha trabajado).
[unitegallery fondef_puertomontt]





















