Esta casa fue pensada desde dos premisas fundamentales: La medida y la factibilidad constructiva. La primera tenía relación con el trabajo de fabricación en industria que consideraba un paquete prefabricado en base a complejos estructurales de piso, muros y componentes constructivos de vigas y cerchas, los arquitectos conocíamos el modo de trabajo de la industria y las facilidades que se ofrecían para modular la casa en base a paneles de igual tamaño, lo que además de acelerar su instalación en obra, contribuía a un uso racional de las piezas de Pino Radiata.
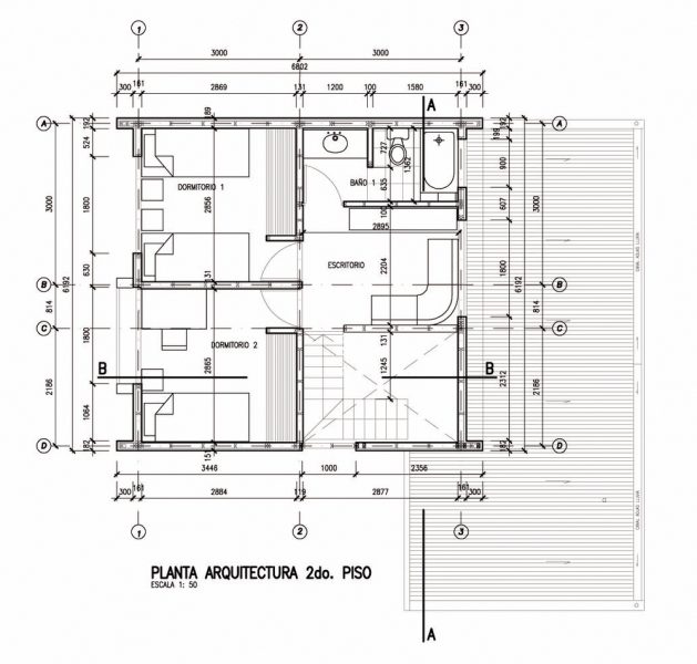
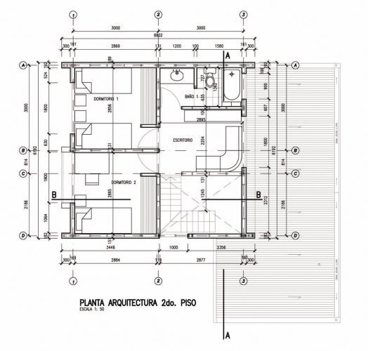
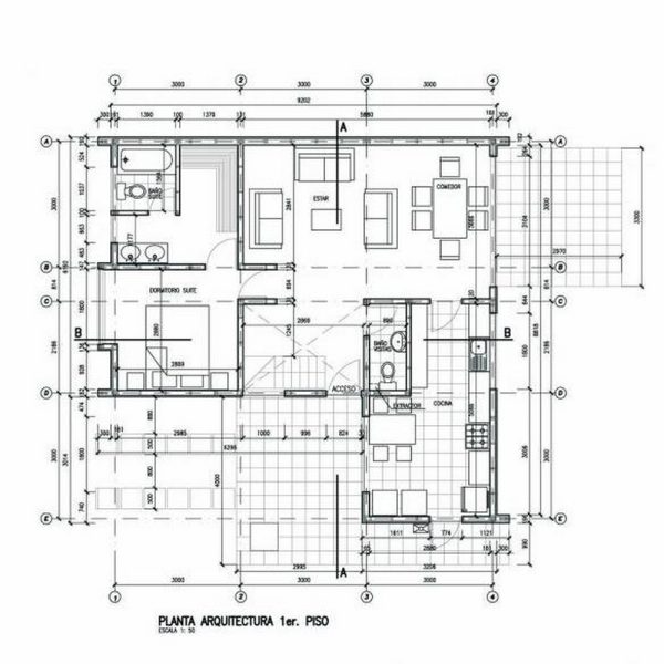
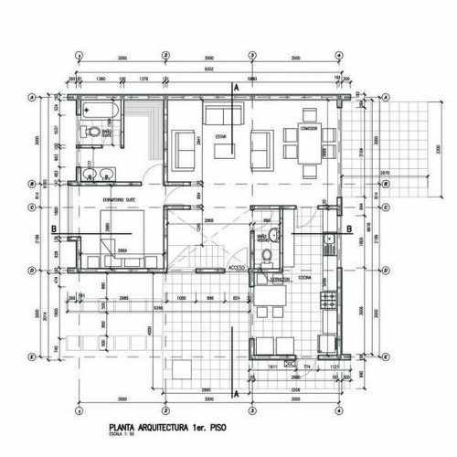
Las dimensiones de la madera en su escuadría común y mayoritaria en Chile de 3.2 mts. de largo de listón, nos entregaban una posibilidad de trabajo en base a un módulo 3.10 x 3.10 mts. de planta.
Esto permite realizar un diseño que en la planta de primer piso dispone de 7 módulos y en el segundo 4, respetando en todos los casos la medida 3.10 x 3.10 mts.
Las alturas de piso a cielo de 2.4 mts. homogenizaban los entramados verticales. Se consideró en la caja escalera una doble altura que ampliaba las vistas y los espacios de distribución.
La segunda premisa tenía como origen los aspectos relativos a la construcción y el uso de los materiales, las investigaciones previas nos arrojaron datos que ampliaban las consideraciones a tomar en cuenta, que incluyeron temas que iban desde la eficiencia energética hasta la realidad del usuario-comprador.
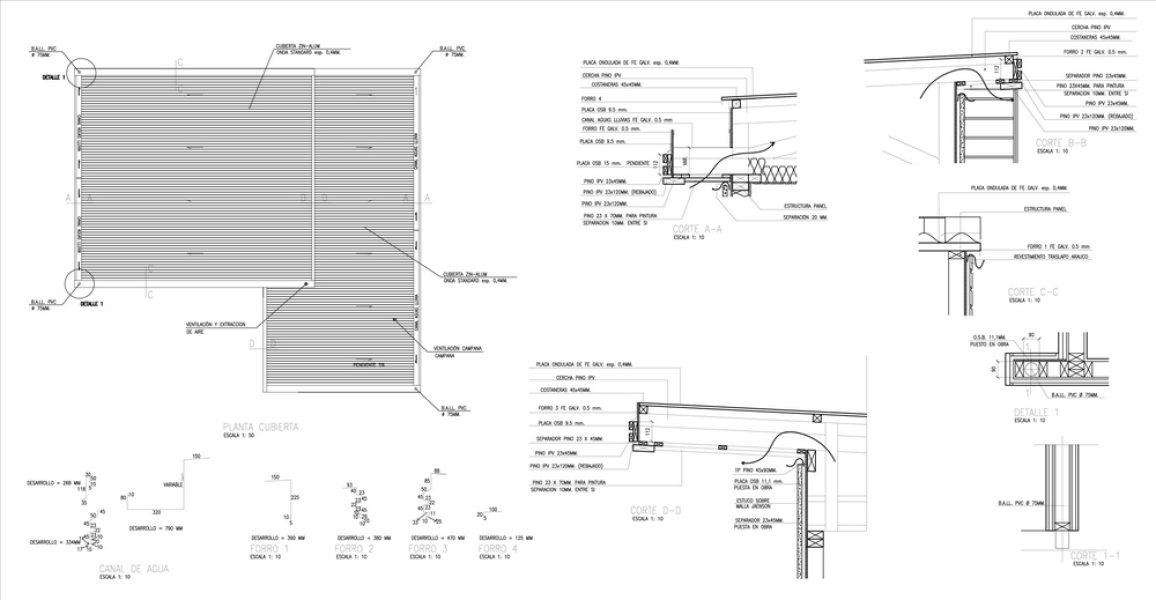
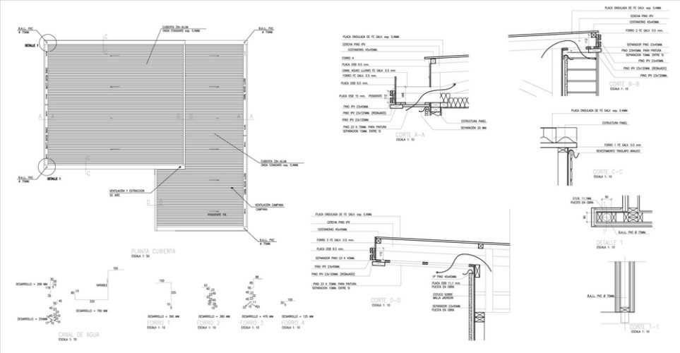
Respecto a la zona geográfica de ubicación del proyecto (Valle Central-Santiago) fueron importantes los aspectos relativos al clima, principalmente relacionados con las variaciones en los niveles de humedad los que podrían provocar que la madera trabajara excesivamente (la afirmación trabajo de la madera define la posibilidad que ésta tiene de hincharse y contraerse ante las variaciones de humedad y temperatura), ésto iba a generar deformaciones y daños mecánicos o físicos en el material, lo que obligó a pensar; para la región metropolitana, el uso de estuco como revestimiento exterior de los entramados de madera.
Esta combinatoria de los tipos de material utilizado, lejos de minimizar las cualidades físicas y funcionales de la madera, la potenciaron poniendo en valor su versatilidad y adaptabilidad, dejando a la vivienda en un alto nivel de resistencia estructural y solidez constructiva.
En relación con este tema, resulta interesante reflexionar en cuanto a que la geometría de nuestra construcción-casa, es una respuesta a la forma de la parte o de los componentes utilizados, se trata de una casa de paneles modulados en un orden predeterminado por una grilla, que le anticipa al usuario una manera para ampliarse, que respeta al módulo y ordena el procedimiento para el crecimiento de la vivienda.
La suma de estos módulos determina una forma a la que no se le agrega nada más que un orden. Hablamos entonces, de un diseño por componentes constructivos, de paneles o entramados modulados en base a una trama cartesiana.
[unitegallery fondef_santiago]






















