El prototipo se emplaza en los loteos realizados por Empresas Fourcade en Temuco, que siguiendo las directrices del mercado ha desarrollado extensos conjuntos de vivienda para familias de ingresos medios. En estos loteos la vivienda es entendida como casa aislada en un terreno propio, al modo de un barrio jardín, siguiendo el ejemplo de los barrios de mayores ingresos, llevando este modelo a sus dimensiones mínimas.
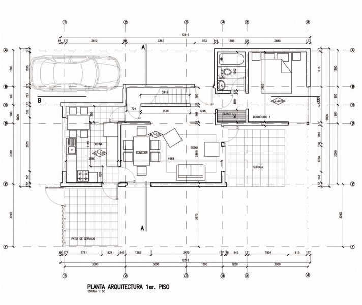
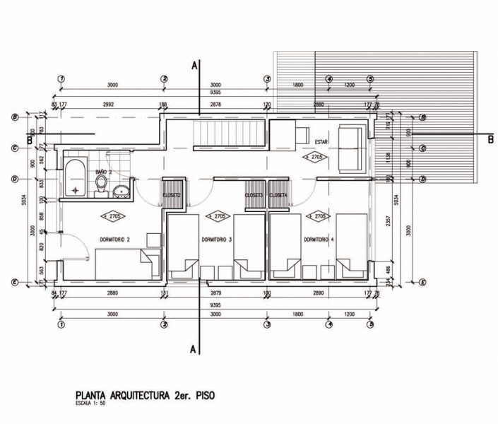
Tomando en cuenta que los clientes privilegian la cantidad de recintos sobre la amplitud o calidad de los mismos, se consideró un programa extenso:
– living comedor
– cocina
– dormitorio principal con baño
– tres dormitorios secundarios
– segundo baño
– estar o escritor
Se tomaron en consideración las condiciones particulares que entrega la experiencia de la inmobiliaria sobre la ubicación y relaciones entre cada recinto y con el terreno propio y la calle. Se buscó desarrollar además una unidad básica que permitiera su repetición en distintas configuraciones, formando conjuntos coherentes capaces de dar forma al espacio público, manteniendo la individualidad de cada casa.
La casa tiene elevaciones laterales caracterizadas por el perfil de sus cubiertas, la sucesión de planos oblicuos individualiza la casa y otorga interés al escorzo de la calle. Estas fachadas pintadas de color café oscuro conforman un manto que identifica a la casa como parte de un conjunto.
La fachada a la calle, concentra las ventanas de varios recintos y se ha trabajado como una máscara, pintada con colores vivos que permiten distinguir cada una de las casas. El uso del muro ventilado caracteriza el prototipo y se trabajó tanto la expresión de la casa como resultado de su construcción, así como los aspectos medioambientales de manera de potenciar las ventajas climáticas que el tabique ofrece.
Para los aspectos medioambientales también se aprovecharon tanto las características aislantes del muro ventilado como la posición de los vanos de acuerdo a la orientación de las casas y su relación con los vecinos y el espacio público de la calle. Por último, respecto al manejo de las aguas lluvias, se tuvo un especial cuidado los detalles de hojalatería, los cuales fueron incorporados desde un comienzo en el diseño de las fachadas de la vivienda.
[unitegallery fondef_temuco]

























