Puente CLT: Madera Estructural Masiva

Código de registro: ING3349

Universidad: Pontificia Universidad Católica de Chile

Sede:  Centro UC de Innovación en Madera

Equipo: Francisco Eckhardt Contreras, Cristobal Reyes Gaete

Profesores guía:

DOCUMENTOS ADJUNTOS

© Derechos reservados por sus autores intelectuales.

Memoria del proyecto

Presentación del proyecto

Lámina N°2 del proyecto

Lámina N°3 del proyecto

Lámina N°4 del proyecto

Lámina N°5 del proyecto

Lámina N°6 del proyecto

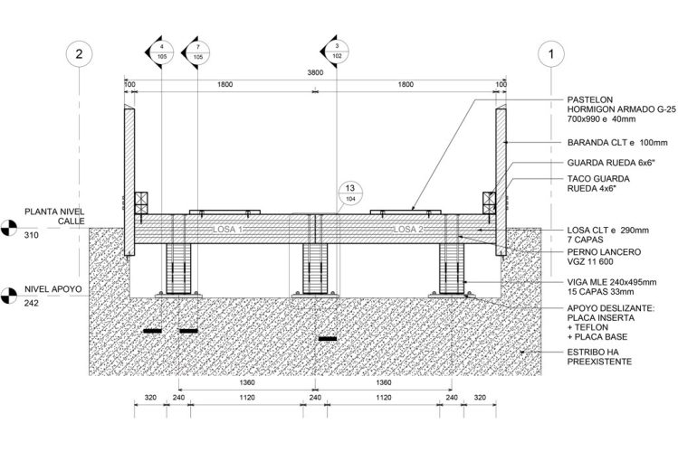
Puente CLT: Madera Estructural Masiva El proyecto nació a raíz de un convenio de colaboración con la Municipalidad de Pucón, que tenía la necesidad de reemplazar puentes rurales desgastados en la región. Estas estructuras de baja ingeniería apenas alcanzaban una vida útil de 5 años. Luego el objetivo final es desarrollar puentes en madera estructural de alta calidad y viabilidad técnico-económica. Para eso el proyecto contó con un fuerte enfoque investigativo aplicado para cerrar las brechas tecnológicas en el desarrollo de la ingeniería estructural de puentes de CLT. Para lograrlo, se integraron métodos del estado del arte que buscan demostrar la mejora significativa en el rendimiento estructural del material, así como el impacto positivo en la constructibilidad y economía del puente. Así busca validar técnicamente un innovador puente concebido con madera estructural, el cual puede aprovechar las ventajas de la industrialización, un proceso eficiente de montaje y un enfoque sostenible gracias a la utilización de este material. El objetivo es asegurar productos que puedan implementarse rápidamente y a costo competitivo, para así contar con alternativas de tránsito vial que mantengan y mejoren la conectividad en las áreas rurales del país. Para capturar los efectos de manera más precisa, se modeló el comportamiento del CLT utilizando elementos multilayer shell y se empleó un modelo isotrópico transversal para la madera. Las vigas, por su parte, se modelaron utilizando elementos frame y se aplicó un modelo isotrópico para el material. Asimismo, para tener una representación más precisa del trabajo colaborativo en la sección compuesta, se calculó el ancho efectivo del tablero de CLT siguiendo el método de Augustin (2017). Además, se consideró el desfase entre los centroides del tablero y las vigas mediante la implementación de elementos rígidos denominados cachos rígidos" Estos mismos elementos rígidos se utilizaron para incluir el efecto de los tornillos que influyen en el deslizamiento entre el tablero y las vigas, mediante la incorporación de un resorte lineal. En un principio, el proyecto contemplaba el uso de metodologías establecidas en códigos oficiales de diseño, como NCh1198 y EC5. Un aspecto clave para el funcionamiento colaborativo entre CLT y vigas eran los tornillos que los conectaban. Sin embargo, los códigos actuales no abordaban adecuadamente los efectos de los tornillos inclinados en 45°, a pesar de que investigaciones previas habían demostrado sus beneficios estructurales. Como resultado, se requería una gran cantidad de tornillos de conexión, con una distribución de escaso espaciamiento. Esto tuvo un impacto significativo en el presupuesto y la factibilidad constructiva del proyecto. Luego parte del desafío fue incorporar de manera segura resultados de la investigación de Tomasi et al. (2010) dentro de la ingeniería del proyecto. La investigación demuestra la mejora de rigidez y resistencia de los tornillos debido a que la disposición inclinada permite que el mecanismo de transferencia de carga no solo dependa de la resistencia lateral, sino que también involucre la resistencia axial del conector y la fricción del efecto cuerda entre las piezas de madera. Se realizó una comparación exhaustiva entre las disposiciones normativas (NCh1998 y EC5), las notas técnicas de los proveedores (Rothoblaas, ETA-11/0030) y metodologías propuestas por autores para caracterizar el desempeño y resistencia de los tornillos inclinados (Bejtka y Blaß, Tomasi et al.). Los resultados mostraron que las expresiones propuestas por Tomasi, junto con los resultados de ensayos realizados por la empresa Rothoblaas, fueron capaces de caracterizar de manera más precisa la rigidez y la resistencia de los tornillos inclinados. Estas expresiones fueron más adecuadas en comparación con las que proponen las normas y conservadoras en línea con los resultados obtenidos en las campañas experimentales. Como resultado de la investigación aplicada, el proyecto experimentó una notable mejora en el trabajo colaborativo entre el tablero de CLT y las vigas, lo que llevó a una reducción significativa en la cantidad total de tornillos, pasando de 720 a 384 unidades. Beneficio directo en los costos del proyecto también como la eficiencia constructiva al facilitar su instalación en obra. La cubicación material del proyecto demostró que es factible desarrollar este tipo de puentes por menos de $50MM, clasificando al puente como una obra económica. Además, la alta capacidad de prefabricación, la facilidad de transporte y montaje típicos de la madera, resulta en un producto altamente competitivo y de rápida implementación que contribuye a mantener y mejorar la conectividad en zonas rurales. De este modo, los puentes estructurados en madera masiva ofrecen una atractiva alternativa de baja inversión que permite su ejecución y financiamiento a nivel municipal, evitando trámites burocráticos a través de gobiernos regionales o ministerios.

¡Comparte nuestro contenido!