Empresa / oficina: A. Moreno Arquitectura y Paisaje
Arquitecto a cargo: Antonia Moreno Oliger
Cliente: César Lagos Rapahango y Paula Rojas Araya
Ubicación: Av. Atamu Tekena s/n, Hanga Roa, Rapa Nui
País: Chile
Año de construcción: 2020
Tipo de construcción: Viña del Mar
Fotógrafo: Paula Rojas, César Lagos, Tamaru Huke, Noelani Rapahango y Edwin Madueno
DOCUMENTOS ADJUNTOS
Descripción del proyecto
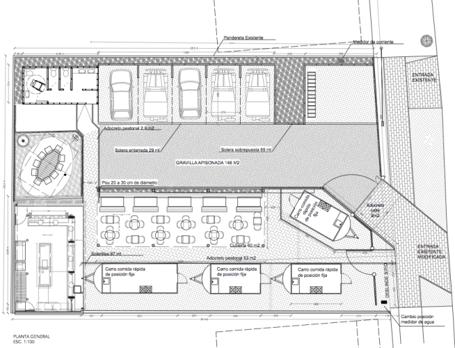
Con el comienzo de la pandemia César Lagos y Paula Rojas, reconocidos empresarios turísticos locales, decidieron diversificar su rubro y abrir un patio de comidas en un terreno de casi 600 m2 ubicado en la calle principal de Hanga Roa. El encargo consistía en generar una techumbre central alrededor de 4 carros de comida o foodtrucks, diseñar un pae pae (construcción liviana) para baños, contar con estacionamientos para vehículos, motos y bicicletas y al fondo diseñar un quincho para cocinar carnes y pescados. Se mejoró una pirca de piedra volcánica en el deslinde sur para dar prestancia al lugar, y el resto de los deslindes de pandereta fueron recubiertos con pikanos o ramas gruesas de eucaliptus, a la usanza local. Los clientes pidieron dejar al fondo el quincho y baños, desarrollar el patio de comida en el lado sur y dejar los estacionamientos al norte.
Innovación en el uso de la madera
Con el quincho pudimos cumplir un sueño largamente pospuesto, probar la factibilidad de construir con tejuelas en Rapa Nui. Esta pequeña construcción de 45 m2 la tomamos con César como una oportunidad para experimentar con nuevas materialidades y así ampliar nuestras posibilidades para futuros proyectos. El quincho es la primera construcción realizada con tejuelas de madera en la Isla. Esta apuesta lleva menos de dos años construida, por lo tanto aún no podemos garantizar los resultados, pero viene a competir con la amplia utilización de palmex (imitación plástica de hoja de palma) en el lugar, inspirándonos en tantos ejemplos de otras latitudes de polinesia, dónde la humedad y temperatura varían menos abruptamente que en Rapa Nui y el uso de la tejuela es común.
Desempeño Técnico
El material más utilizado en Rapa Nui para construcciones comerciales la última década ha sido el Palmex, el cuál importado desde Canada es altamente costoso. Por eso pudimos convencer al cliente y optar por una solución nacional de alta calidad y precio competitivo. Usamos tejuelas de pino termotratadas de Topwood, protegidas por todas sus caras con con Cutek de Woodarch para alargar su vida útil. Además se utilizaron clavos y tornillos galvanizados de Simpson ST para no contaminar con óxido la construcción, ni producir reacciones químicas indeseadas con los impregnantes de la estructura de madera. El uso de tejuela en un ambiente de clima tan cambiante, con fuertes vientos secos seguidos de lluvias torrenciales con altísima humedad, es un riesgo y quizás se terminen torciendo al punto de tener que cambiarlas. Por el momento llevamos un año y medio funcionando perfectamente, por lo que vale la pena experimentar en la búsqueda de materiales mas sustentables y pertinentes.
Propuesta conceptual y/o impacto
Una ventaja de haber construido durante la pandemia es que al estar la isla cerrada por años el alto impacto que causo la belleza y originalidad del quincho en los empresarios locales puede significar un impulso real en el uso de la tejuela de madera en Rapa Nui. Este experimento viene a competir directamente con la tendencia generalizada de construir las techumbres comerciales con Palmex, acercando la arquitectura local a su raíces polinésicas. La idea fue construir una estructura extremadamente simple y en la línea de la arquitectura que venimos desarrollando hace años en la isla, madera, zinc y elementos locales como piedra volcánica y mesones de madera. Pero también complejizar la propuesta en sus detalles enriqueciendo el proyecto con una factura impecable en el uso de tejuela, mesones de cedro y persianas en acordeón de pino fabricadas en obra con herrajería de Hunter Douglas.










¡Comparte nuestro contenido!