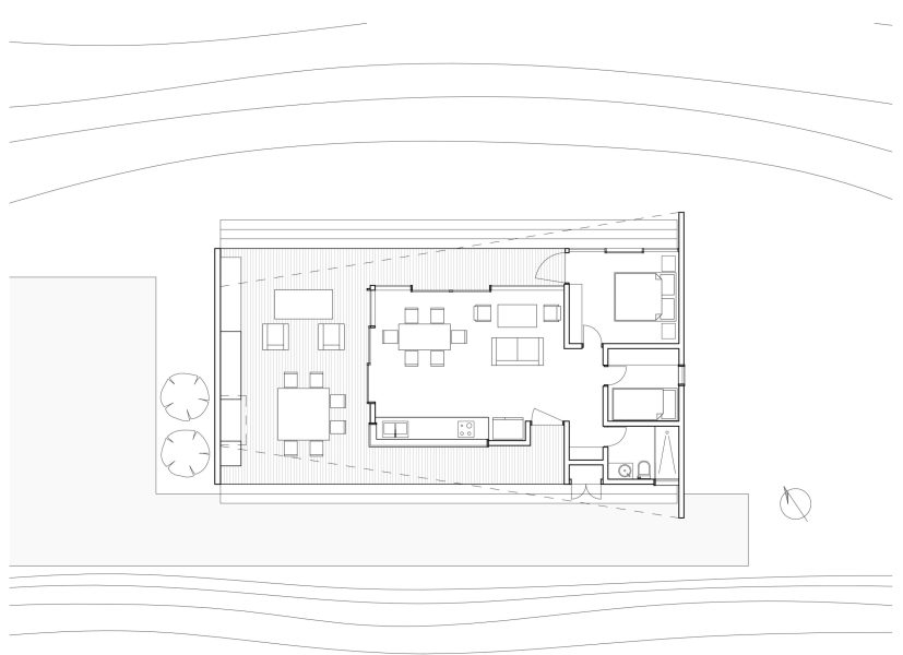
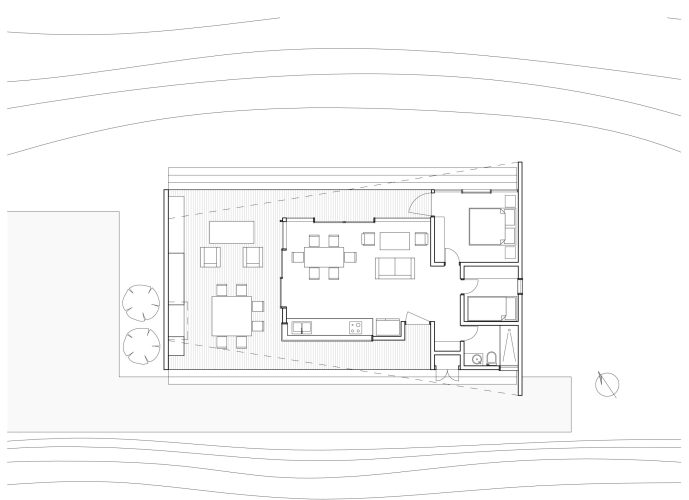
El cliente escogió la zona de Matanzas por sus atributos. Practicante del Kitesurf, quería un refugio que les permitiera disfrutar de la vista y del exterior, protegidos del viento. Con esta base, se trabajó en un esquema simple, que hicieses referencia a su pasatiempo. Se optó por una cubierta que cambia de ancho respecto a la base, un juego geométrico simple, que le da movimiento a la casa y que logra que esta se perciba diferente dependiendo del punto de vista que se tenga, generando una arquitectura dinámica, que convive perfectamente con el entorno y armoniza con lo natural.
El terreno se encuentra en la parte superior de una loma. Se optó por ubicar la casa unos metros por debajo de la cima, convirtiendo la loma en un protector natural del viento sur. La terraza cerrada cobija y protege del sol y viento poniente, la ubicación pone la mirada hacia la belleza del paisaje principal; la desembocadura del Río Rapel.
Se proyectaron grandes ventanales, con orientación norte (privilegiando vista al paisaje y abundancia de sol) más una fachada con pequeñas aperturas hacia el sur, disminuyendo así las perdidas térmicas. Se obtuvo una gran ganancia energética con luz natural.
Se optó por el uso de madera, por su abundancia en la zona y sus características térmicas y ventajas constructivas y por ser un material conocido por los maestros de la zona.
La madera utilizada principalmente es pino radiata. Para interiores y exteriores se aplicó protectores de madera. Claros y cálidos en el interior y oscuro para el exterior de manera de proteger mejor de los rayos UV las caras más expuestas. Utilizar madera nos permitió poder estimar de manera precisa los costos y tiempos al ser un material conocido por los trabajadores de la zona.
Concebir una casa de madera aporta flexibilidad en el diseño y un proceso constructivo amigable con el medio ambiente. Los interiores de una casa construidla en madera son cálidos, sanos y escalados. Este proyecto se sale de lo convencional sin ser pretencioso en su forma. Es un proyecto simple, que con decisiones simples pero poco tradicionales genera algo novedoso que responde al cliente.
Fotografías de Sebastián Cerda Pé
[unitegallery refugio_matanzas]











