La iglesia Nuestra Señora de los Dolores de Dalcahue es uno de los dieciséis templos chilotes reconocidos como Patrimonio de la Humanidad por la Unesco el año 2000 y el tercero en ser restaurado de manera integral gracias al financiamiento del Estado mediante el Programa Puesta en Valor del Patrimonio.
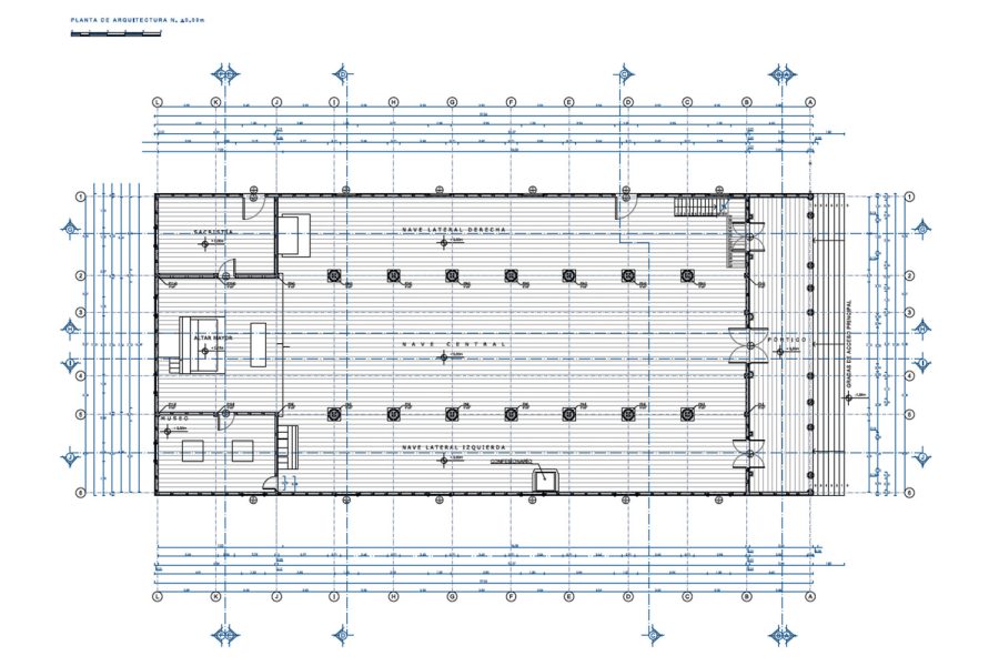
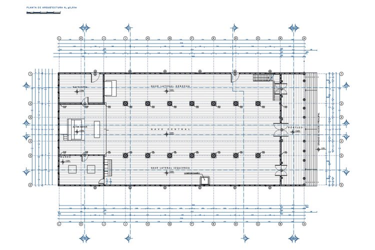
Construida entre 1893 y 1902, se la considera una de las iglesias más antiguas de las que actualmente existen en la isla. Además de sobresalir por el gran tamaño de su planta (38,4 metros de largo por 17,1 metros de ancho) y la altura de su torre de 26,5 metros, la edificación presenta un singular pórtico de nueve arcos: seis en punta, dos remontados y el central, de medio punto. El volumen interior se distribuye en tres naves, construidas principalmente en madera de ciprés, alerce y ulmo, mientras que el exterior está revestido con tejuelas de alerce.
El inmueble constituye un valioso exponente del sistema constructivo tradicional que caracteriza los templos de la isla y que se ha denominado Escuela Chilota de Arquitectura Religiosa en Madera. Dicho sistema se basa en el uso de grandes piezas de madera ensambladas y empalmadas que funcionan como un verdadero mecano, susceptible de ser desarmado y rearmado. Este fue, precisamente, el principio que se aplicó al momento de definir la metodología de trabajo para la restauración integral dirigida por la arquitecta Katerine Araya, que planteó respetar los ensambles y empalmes utilizados en la construcción original.
Primero se procedió a desarmar la estructura, cuidando que cada pieza fuese retirada en forma íntegra y numerada de inmediato. Luego, cada una de ellas fue analizada en forma individual para determinar su estado de conservación.

Con respecto a los daños detectados, se concluyó que la acción de hongos de pudrición e insectos xilófagos (como el Anobium punctatum y Marileus chiloensis) fueron las patologías más frecuentes. La primera se focalizaba en aquellas partes de las piezas expuestas a mayor humedad; la segunda proliferaba en especies madereras de mala calidad, como la tepa (Laureliorsis philipiana), presente en entretechos. Por otro lado, las piezas de maderas más duras como el coigüe (Nothofagus nitida) o tenío (Weinmannia trichosperma), se encontraban en buenas condiciones, con daño restringido a ciertas áreas.
Dependiendo de la naturaleza y magnitud del daño, se definió qué piezas podrían ser reutilizadas, extremando el ingenio para aprovechar la mayor cantidad posible de unidades preexistentes. Por ejemplo, aquellos pie derechos que tenían dañado el extremo inferior y no calificaban en su longitud completa para ser reutilizados en su función estructural, fueron empleados para la conformación de sobresoleras incorporadas a los tabiques laterales. Del mismo modo, todas aquellas piezas dañadas que aún poseían superficies sanas fueron destinadas a una nueva función.
Las piezas que mostraban signos de ataque moderado por parte de insectos xilófagos se dejaron en áreas a la vista ‒como torre y entretechos‒, a fin de facilitar su revisión y tratamiento periódico con productos antixilófagos. Y en el caso de aquellas vigas de piso con porciones importantes desintegradas a causa de la pudrición, se las transformó en peldaños para las escaleras de acceso a la torre.
Con el fin de adecuar la construcción a la normativa vigente, se instalaron nuevas fundaciones de hormigón armado, en reemplazo del antiguo sistema de piedras apoyadas sobre el suelo, cuya tendencia a hundirse ponía en riesgo la estabilidad de la estructura.
Finalizada la restauración estructural, se prosiguió con la reinstalación del revestimiento interior. En esta etapa, se realizó un estudio de las capas de pintura preexistentes, como antecedente para formular una propuesta de color coherente con la historia del inmueble. Se consideró también la opinión de la comunidad, que aspiraba, sobre todo, a restablecer la luminosidad interior de la iglesia y recuperar el revestimiento imitación mármol de los pilares y el friso de las columnatas.
Después de 24 meses de trabajo prolijo y minucioso, la iglesia reabrió sus puertas el 12 de septiembre de 2015, convertida en un inmueble más sólido y seguro para sus ocupantes, conservando su sistema constructivo tradicional y recuperando la luminosidad que la comunidad anhelaba.
[unitegallery Obra_Iglesia_Dalcahue]
PROMOTORES
Subsecretaría de Desarrollo Regional
Dirección de Arquitectura MOP
Gobierno Regional de Los Lagos
PROPIETARIO
Obispado de Ancud
COLABORADORES
Dibam, a través de Consejo de Monumentos Nacionales (CMN) y el Centro Nacional de Conservación y Restauración (CNCR)
Comunidades católicas locales
Ingeniería estructural: Juan Martínez Mezquida
Constructora: Fundación de las Iglesias Patrimoniales de Chiloé
Fecha de construcción: 1903
Fecha de restauración: 2013-2015
Inversión: 980 millones de pesos
Fotógrafo: Katerine Araya Toro










