En un reducido terreno debíamos proyectar un volumen para exposiciones del mobiliario VITRA, importante marca internacional de diseño y fabricación de muebles de casa y oficina. Acorde con el estilo de sus creaciones, el edificio debía ser original, atemporal y con una arquitectura pensada en función de los elementos a exhibir, de manera que éstos aparezcan con el debido protagonismo y puedan desplazarse o cambiarse con soltura y flexibilidad.
El sector donde se emplaza la Sala de Exposiciones-Showroom, mantiene aún su escala de barrio tradicional de Vitacura, y una creciente oferta cultural. Sin embargo, ante la posibilidad de futuras construcciones en altura en el sector, el proyecto se pensó desde la visión que ambas tipologías deben complementarse y convivir armónicamente.
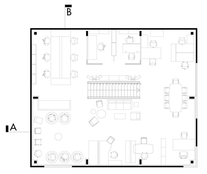
Como partido general se usó la normativa sin densificar, así podíamos obtener la “constructibilidad” máxima en dos pisos altos con un ante jardín de cinco metros por ambas calles cumpliendo con la regulación. El resultado es una caja perfectamente modulada, donde las vitrinas son menores, para incentivar el ingreso y protegerse del poniente.
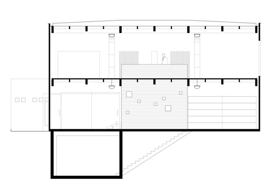
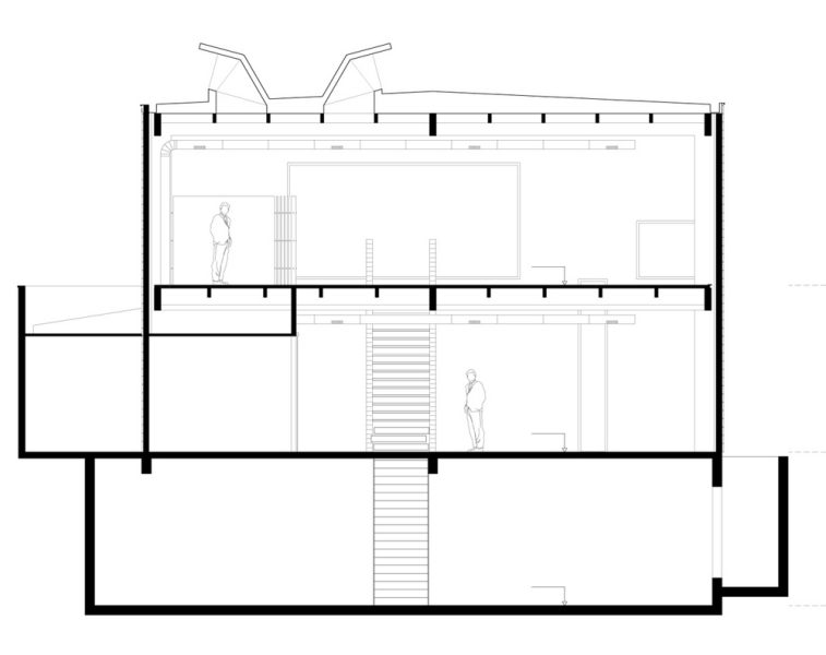
Formalmente el volumen de 15 x 12 mts. y 8 de altura se ordena internamente en dos plantas libres que se relacionan por una escalera central apoyada en un muro de madera laminado perforado, que en primer piso conforma la recepción, y al mismo tiempo la baranda del segundo. Así se obtiene la superficie totalmente libre que requería la sala, sin necesidad de un sobre-diseño tan común en este tipo de proyectos.
El trabajo relacionado con la arquitectura de obras y proyectos de interiorismo se desarrolla en el segundo piso aprovechando los mismos sistemas de organización de muebles VITRA.
La estructura primaria del edificio se compone de pilares y vigas de 43 x 14 cms en madera laminada encolada y apernada, completamente recuperable, de la cual forman parte también las planchas de terciado estructural sobre las vigas de ambos pisos.
El “arriostramiento” horizontal consiste en un tabique independiente y separado de la estructura de madera, con un armazón interior metálico diagonalizado, pero unido a éste con conectores metálicos, haciéndolos solidarios. El revestimiento exterior, también de una doble tabla de pino laminado, presenta una terminación en bruto, cuyo impregnado es de un color gris verde que revela el envejecimiento de la madera.
Se eligió el pino como material predominante por ser un recurso natural de nuestro país, renovable, ecológico y no contaminante, que se adapta bien a lo que queríamos lograr: calidad, esbeltez y agilidad para una construcción en cuatro meses.
La estructura interior de madera y otros materiales como obra gruesa terminada y a la vista, exigió una gran preocupación desde el inicio, ya que esa sería la terminación: madera con impregnante claro, tabique perimetral y piso hormigón pintados blanco, que aportan un ambiente neutro, donde se destacan las ambientaciones de la marca.
Todos los herrajes metálicos, ductos de aire especiales semicirculares perforados, y la canalización eléctrica en base a una bandeja que recorre toda la superficie y donde va todo el sistema de iluminación, se dejaron a la vista, suspendidas de las vigas, y al igual que los aluminios, de terminación y color galvanizado.
[unitegallery Sala_Vitra]































