La pregunta inicial de los arquitectos fue cómo debía ser la manera de habitar con elementos tradicionales y vernáculos del campo. Para ello, investigaron los cerramientos de las ramadas de la medialuna existentes dentro del campo en el cual se ubica el spa.
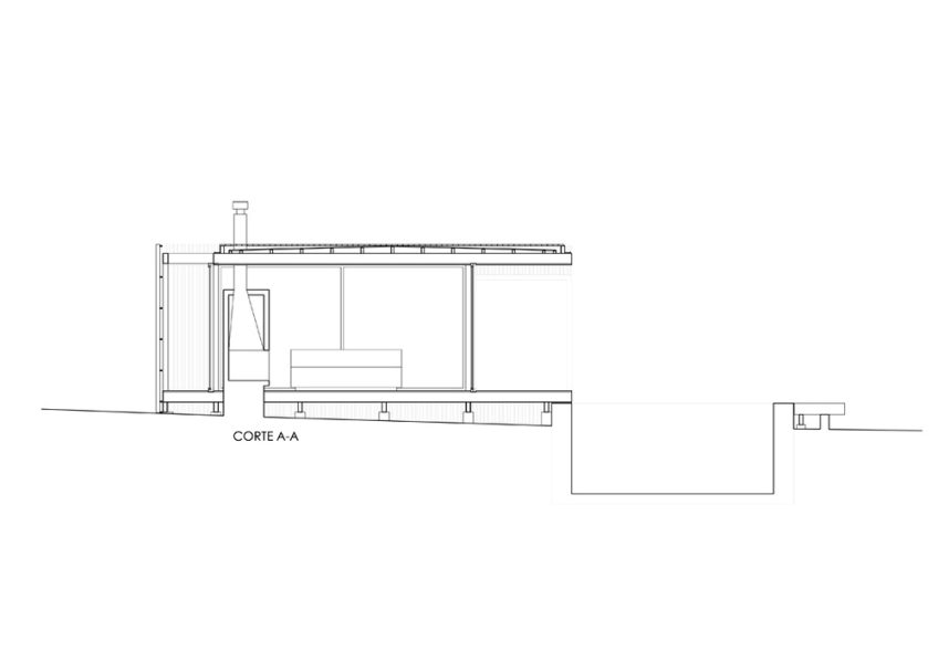
La ramada actúa como un filtro hacia el medio ambiente: registra el paso del día a través de las sombras que proyecta y crea espacios intermedios que sirven de fusión y transición entre el interior y exterior.
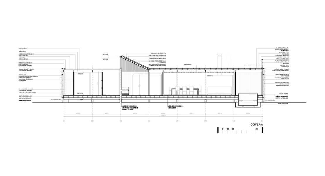
La ramada se reinterpreta en una doble piel, construida en madera nativa que se utiliza como una estrategia pasiva sostenible para controlar la luz natural, crear espacios interiores ventilados y proporcionar privacidad.
Además de la ramada, se incorpora las circulaciones de las casas coloniales que están protegidas por un techo, pero en contacto con el clima exterior, y perimetrales a los espacios interiores que conectan.
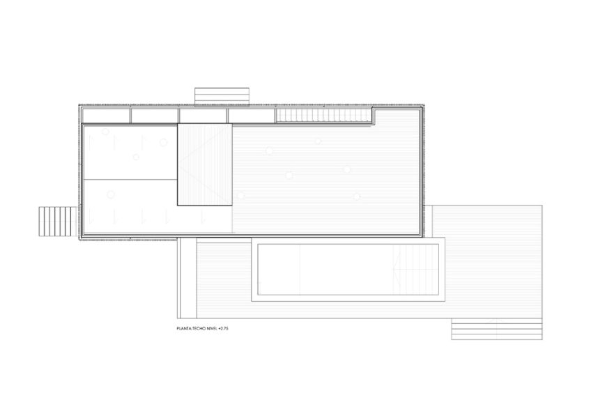
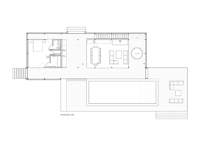
El proyecto se estructura a través de un espacio central, donde se concentra la mayor actividad. El quincho es desde donde se conectan los distintos espacios que tienen que ver con la piscina, hot tub, fogón, permitiendo tener variados lugares para estar, pero visualmente conectados.
Todo está envuelto en una piel exterior de listones madera de 1”x3” de ulmo que interpreta la ramada, logrando la sensación espacial exterior-interior.
Fotografías: Camilo Melús
[unitegallery Obra_SPA_LasPalmas]





















