Extracto de la descripción proporcionada por el equipo de ROSSIPRODI ASSOCIATI (www.rossiprodi.it).
Milano Vía Cenni es el mas grande proyecto residencial realizado en Europa utilizando un sistema de estructuras portantes en madera. Ofrece departamentos a precios reducidos, y una solución habitacional innovadora que se basa en la cultura del habitar sostenible y colaborativo. Los destinatarios son principalmente jóvenes, entendidos tanto como nuevos grupos familiares, como solteros que dejan la casa de su familia.
El proyecto nace desde el concepto de comunidad y como esta pueda ser desarrollada y consolidada también en un contexto urbano mono funcional y con una presencia limitada de polos de agregación. En particular, el proyecto se basa en una idea de desarrollo mixto, sobre la consideración de que a una variedad tipológica, corresponde también a una variedad social.
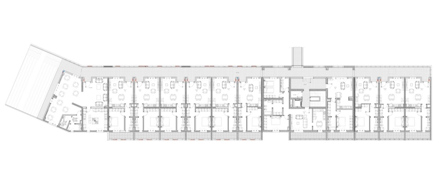
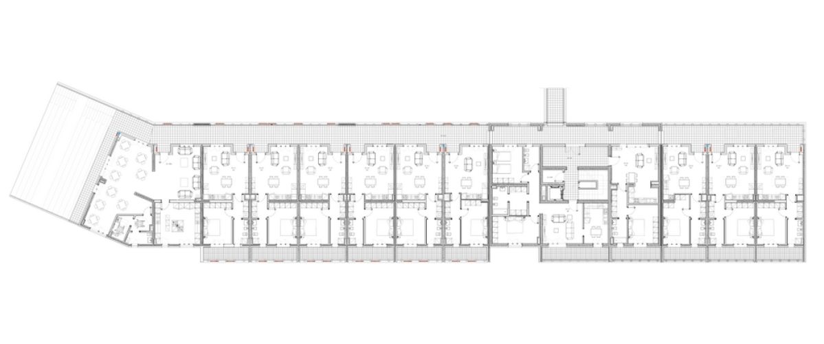
El complejo se compone por 124 departamentos de distintas dimensiones, y prevé además la inserción de una serie de servicios colectivos, espacios recreativos y culturales, y actividades dedicadas a los jóvenes, con el objetivo de crear las condiciones óptimas para la formación de una red de relaciones sociales y de vecindad.
El nuevo proyecto tiene como objetivo la creación de un contexto socio-habitacional animado y seguro, paralelamente a la oferta de ambientes destinados a la valorización de las relaciones sociales. Para esto, ha tenido particular relevancia el desarrollo de los espacios comunes, concebidos como una serie de recorridos y lugares que se articulan para ser utilizados en distintos momentos, y por distintas tipologías de habitantes. Se proyectaron algunos elementos arquitectónicos (balcones, escalinatas, puentes, porterías, corredores y cuerpo-escalas), destinados a transformarse en espacios relacionales y de encuentro para la comunidad. El corazón del proyecto es el patio interior, un pequeño parque abierto a toda la ciudadanía, que comprenderá áreas de juego, zonas de descanso y pérgolas.
Concepto Estructural
[…] El proyecto será la intervención en madera de mayores dimensiones en Europa, además de ser el primer edificio de este tipo realizado en zona sísmica. Utiliza la tecnología constructiva de paneles X-LAM. El sistema constructivo se desarrolla en base a paneles portantes de láminas cruzadas, una solución elegida tanto por motivos de carácter ecológico ambiental (bajas emisiones de CO2) como por la potencialidad técnica que permite la realización de edificios de varios pisos con elevadas prestaciones en términos de seguridad y confort.
Lineamientos proyectuales
La eficiencia energética y la protección del medio ambiente representan un objetivo primario. Por esto se han identificado los criterios generales que han guiado las elecciones formales y tecnológicas:
-Eficiencia de los edificios respecto al ahorro energético, con control acústico e iluminación natural
-Equilibrio entre la energía producida y aquella que es consumida mediante un adecuado mix de tecnologías para el ahorro energético y de producción de fuentes renovables
-Reducción de emisiones contaminantes
-Reducción del consumo de agua (separación, reciclaje, etc.)
-Racionalización del proceso constructivo
Innovaciones
Sistema Constructivo en madera a estratos cruzados utilizados para muros y pisos.
- Calefacción y refrigeración mediante paneles radiantes en pisos.
- Sistema centralizado de control y tratamiento del aire, ventilación mecánica y control de humedad.
- Re utilización de aguas lluvia para riego de áreas verdes.
- Agua caliente centralizada.
- Consumos contable individuados por departamento.
- Cada unidad contendrá una placa a inducción lista para ser instalada en cualquier cocina de tipo tradicional.
Todas las soluciones tecnológicas adoptadas garantizan elevados estándares en el campo de la sostenibilidad ambiental reduciendo drásticamente los costos de mantención, permitiendo la clasificación en clase A CENED.
La tecnología constructiva XLAM y los edificios en altura
La tecnología de paneles de madera maciza, encolada a estratos cruzados, desde los años 90 ha permitido realizar elementos estructurales de grandes dimensiones. Ya generalizado su uso en Europa, permite construir estructuras con excelentes prestaciones mecánicas.
Edificios de madera de 4 o 5 pisos son ya parte de la cotidianidad en muchas regiones europeas, la discusión científica actualmente reconoce edificios de hasta 10 o 12 pisos, como posibles para la aplicación de los conocimientos y de las experiencias actualmente disponibles, reservando en la categoría de “ambicioso y experimental” a aquellos de aún mayor altura.
El sistema constructivo de las torres de via Cenni representa la aplicación de estos principios y de este estado del arte. Puede ser definido como innovador y a la vanguardia en cuanto se trata del primer edificio de este tipo y estas dimensiones realizado en zona sísmica.
La elección del sistema XLAM es resultado de un estudio de pre factibilidad sobre la base del proyecto inicial. La dimensión en planta y el número de pisos llevan en modo prácticamente automático a la utilización de esta tecnología constructiva.
Las paredes del edificio son dispuestas en planta en 7 ejes continuos en toda la altura del edificio, adaptándose a la arquitectura del proyecto y permitiendo la disposición de ventanas de considerables dimensiones. La rigidez es obtenida por la interacción de los elementos verticales y horizontales (muros y losas), permitiendo renunciar al uso de pilares y evitando así elementos de discontinuidad estructural y la concentración de las fuerzas sobre la estructura y fundaciones en pocos puntos. El descenso de las cargas se desarrolla sobre todas las paredes, distribuyéndose en modo homogéneo en toda la estructura portante. El resultado es una estructura mas robusta y menos sensible a las solicitaciones sísmicas.
Confiabilidad de las construcciones en madera
[…] Los edificios modernos son construidos con un revestimiento exterior impermeable, que impide a la madera absorber humedad o agua. De este modo el degradado de la madera no es posible, y nada limita su envejecimiento sin límite de tiempo. Obviamente un correcto diseño y ejecución son necesarios para obtener estos resultados.
La estructura portante de los edificios modernos no requiere mantención, pero es fundamental que las fachadas y cubiertas sean mantenidas correctamente, y esto vale para todos los edificios, independiente del material estructural usado. […]
Seguridad de la construcción en caso de incendio
La madera es combustible, pero no se quema con facilidad, aun mas, su proceso de combustión es lento, solo los elementos de madera extremadamente sutiles se queman con facilidad.
En caso de incendio, con temperaturas cercanas a los 1000 grados, la madera sufre una combustión que la carboniza (volviéndola negra) a una velocidad de 0,7 mm por minuto. La parte interna a este frente carbonizado, mantiene una temperatura pocos grados superior a la que tenía antes del incendio, manteniendo también intactas las capacidades mecánicas del material. Gracias a esto, en caso de incendio los elementos de madera reducen lentamente su sección, perdiendo con el paso del tiempo también la capacidad portante. Este tiempo puede ser calculado y verificado en fase de proyecto.
La intervención de vía Cenni prevé un posterior grado de seguridad en cuanto todas las estructuras han sido enchapadas con placas que garantizan una barrera R60 en caso de incendio.
Se puede concluir que la madera, incluso siendo un material combustible, manifiesta la pérdida de su capacidad portante, llevando al colapso estructural, en tiempos prolongados (incluso varias horas), mientras otros materiales, entre ellos el acero y el hormigón, en condiciones similares, pueden portar al colapso incluso en pocos minutos.
Comportamiento al sismo
La madera reduce la masa en cerca del 70% respecto a un edificio tradicional, reduciendo así las fuerzas provocadas por una acción sísmica. Además, la madera tiene características mecánicas de gran deformabilidad, que permiten reducir el efecto dinámico del sismo.
Los especialistas italianos de IVALSA CNR han demostrado en escala real como se comporta un edificio de varios pisos en caso de acción sísmica, para esto han testeado un edificio de 7 pisos directamente al interno del más grande laboratorio de pruebas sísmicas del mundo, en Japón, con resultados extremadamente satisfactorios.
[unitegallery PP_Viviendasocial]




















