El encargo consistió en una segunda vivienda, ubicada en el sector bajo de Tunquén comuna de Algarrobo, en un terreno que no tiene vista directa hacia el mar debido a la distancia que hay hasta la playa.
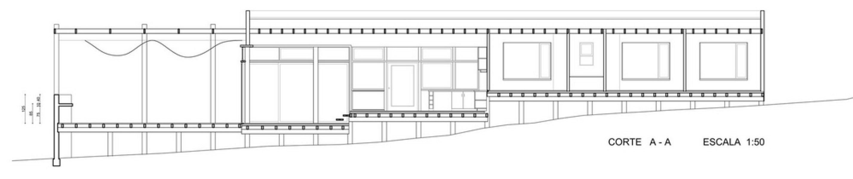
Con respecto al partido general de la casa, se resuelve con dos volúmenes rectangulares ubicando uno por encima del otro, girados en un ángulo de casi 90º, ubicando los ventanales de todos los espacios habitables hacia el norte con el fin de tener una buena iluminación y por sobre todo aprovechar la buena ubicación para disminuir el gasto energético en la calefacción. Se incluyeron aleros para controlar la entrada de los rayos solares, evitando un sobre calentamiento en verano. Con respecto a las ventanas en las fachadas hacia el sur se hicieron mas pequeñas con el fin de evitar la perdida de calor.
Para poder tener vista hacia la playa, el volumen de primer piso se elevo 88 cm de la cota cero del terreno a través de pilotes, con el objeto de ganar altura, con esto el segundo piso queda a una altura promedio de 4.30 mt, lo que permite ver la playa de Tunquén.
En relación a la ubicación del programa en la vivienda, las piezas para los niños e invitados están en el volumen del primer piso y los programas comunes como comedor, living, cocina y quincho, junto con la habitación matrimonial en el segundo piso, para que pudieran tener vista.
El diseño de las habitaciones para los niños se hizo pensando en optimizar la superficie construida, dándole prioridad a los espacios comunes del segundo piso, el referente para estos fueron los camarotes de los barcos. En el segundo piso se encuentra la habitación matrimonial y un solo espacio común que contiene el living, comedor y cocina.
La piscina y la tina caliente, se ubicaron en una terraza de madera entre los dos volúmenes con el objetivo de protegerlos del viento que predomina en el sector, el cual tiene una dirección sur-poniente. La mayoría de los muebles fueron diseñados, con el objeto de optimizar el espacio al interior de la casa y para mantener la predominancia de la madera por sobre otros materiales.
Fotografía: Nicolás Yopo
[unitegallery Vivienda_Tunquen]























