YVYRA. Vivienda de prefabricación para el ámbito rural y suburbano del noreste argentino

Empresa / oficina: ENNE Arquitectura

Arquitecto a cargo: Marcela Gadea y Matías Taborda

Ingeniero Estructural: Luis Francisconi

Cliente:  Forestal Guaraní

Ubicación: Ituzaingó, Corrientes

Ingeniero: Luis Francisconi

País:  Argentina

Superficie construida: 70

Año de construcción: 2019

Fotógrafo: ENNE Arquitectura

Ir al Sitio Web

Se nos encargo reflexionar de que manera podría “modernizarse” el producto vivienda industrializada para nuestra región, que se ubicarán en las áreas suburbanas del norte Corrientes y Misiones. Para nosotros la reflexión más bien pasa por como, usando los recursos disponibles, podríamos generar una más apropiada para nuestro territorio. Ya que, en términos cuantitativos existe una plusvalía en la oferta, no así en términos cualitativos. De este modo el problema no pasa por un ensayo morfológico, si no por como se concibe la forma. Entendiendo esto ultimo como la manera en que se materializa el espacio, buscando sintetizar las complejidades internas y externas del proyecto.

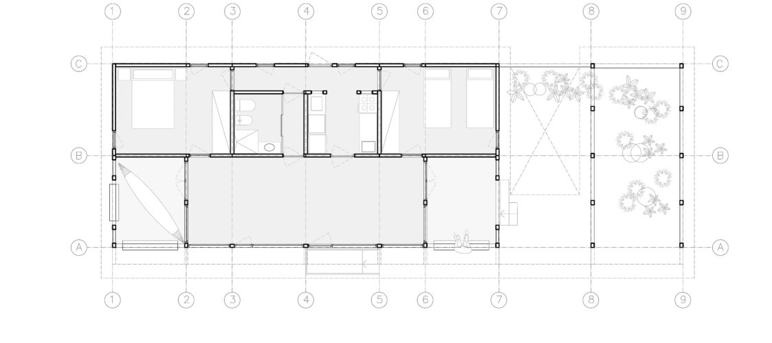
Por aquí se habita bajo el alero. La mayor parte de las actividades domesticas se realizan en el semi-cubierto. La obra busca reflejar eso. Su parte “media transparente” alberga un único salón flanqueado por galerías laterales. Este, por los mecanismos de las aberturas, hacen posible que toda esa “media” pueda transformarse en una gran galería. Contiguo a esta, la “media opaca”, contiene los usos más privados y de servicios.

El concepto descripto se materializa mediante un sistema mixto de poste-viga y placas. Este ultimo, de gran desarrollo en la industria local, para los cerramientos de piso, techo y verticales de la “media opaca”. Para la “media transparente”, el segundo sistema, ya que permite lograr mayores transparencias. Completa la obra el conjunto de cepos, de quebracho colorado, que despega a la vivienda del suelo. Tantos las placas con los poste-viga son de pino impregnado, fueron producidos en fabrica y luego montados en el sitio. Esto hace que la obra dure treinta días en total, quince de fabricación y quince de montaje. Acelerando los tiempos de obra y minimizando los impactos ambientales.

Entendiendo como habitamos aquí, podríamos decir que los arquitectos debemos saber hacer bien dos cosas: techos y puertas. Ante tal fricción espacial con el exterior, del resto de los componentes podría prescindirse. Quizás esto es lo que heredamos de arquetipos vernáculos como la culata jovai*, y no su repetida composición tripartita de la planta. Sin dudas, comprender las relaciones de estas arquitecturas con el paisaje local puede ayudarnos a poner en valor la producción domestica contemporánea.

*Tipo domestico de la arquitectura vernácula en la región. Su nombre en guaraní significa “cuartos enfrentados”. Pues el tipo consiste en dos espacios cerrados, enfrentados a uno semi-cubierto. En este ultimo transcurre la vida domestica y es el controlador climático (sombra y ventilación cruzada).

¡Comparte nuestro contenido!