Casa Zapallar se ubica en un pueblo costero, configurado por una armónica red de calles, una arquitectura ecléctica con jardines impresionantes ricos por su flora. Zapallar es un lugar donde la tradición y la modernidad se están uniendo. La gente del pueblo está migrando, vendiendo a un buen precio y cediendo a nuevas construcciones.
Esta casa refleja austeridad de lo cotidiano, sin pretensiones; con la soltura de una casa de playa. En medio del pueblo irrumpe un volumen nítido que tiende a ser hermético hacia sur, abriéndose a la luz del norte hacia el paisaje.
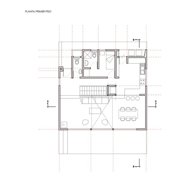
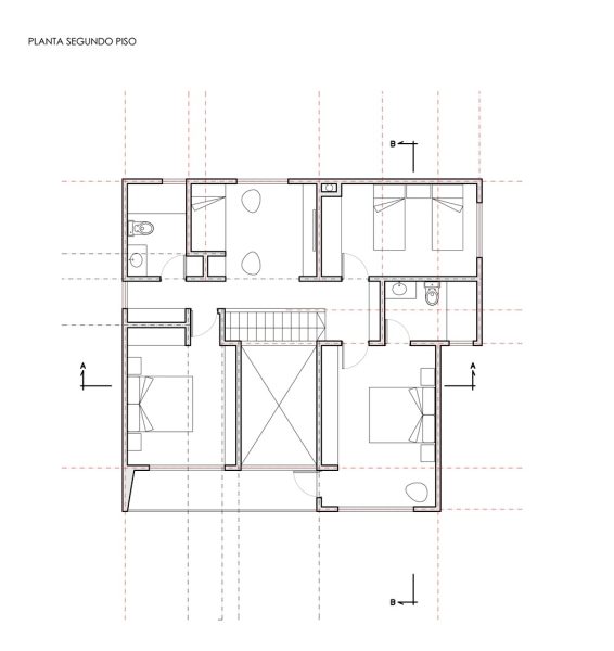
De interiores completamente blancos, con espacios enmarcados por una gran doble altura que permite un espacio generoso de luz natural y el encuentro con los espacios interiores abiertos. El programa se organiza de manera simple; longitudinalmente para el estar, el comedor, la cocina y la escalera al segundo piso. Este volumen de carácter privado, acoge a los dormitorios con sus respectivos baños.
La materialidad de la casa está construida con esqueleto de madera y fachada ventilada. El matizado color grisáceo es resultado de un aporte para resaltar la textura, que se condiciona con las diferentes luces a lo largo del día.
Créditos fotográficos: © Paula Monroy






















